| 案例風格 | 法式風格 | 案例戶型 | 別墅 | 案例面積 | 260㎡ |
|---|---|---|---|---|---|
| 樓盤名稱 | 城開家園 | 設 計 師 | 蔣琛 | 案例造價 | 定制家|全包38萬 |
設計說明
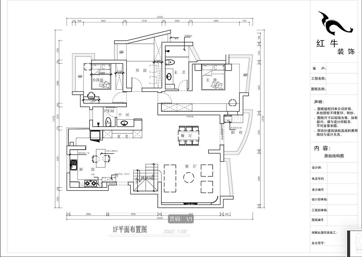
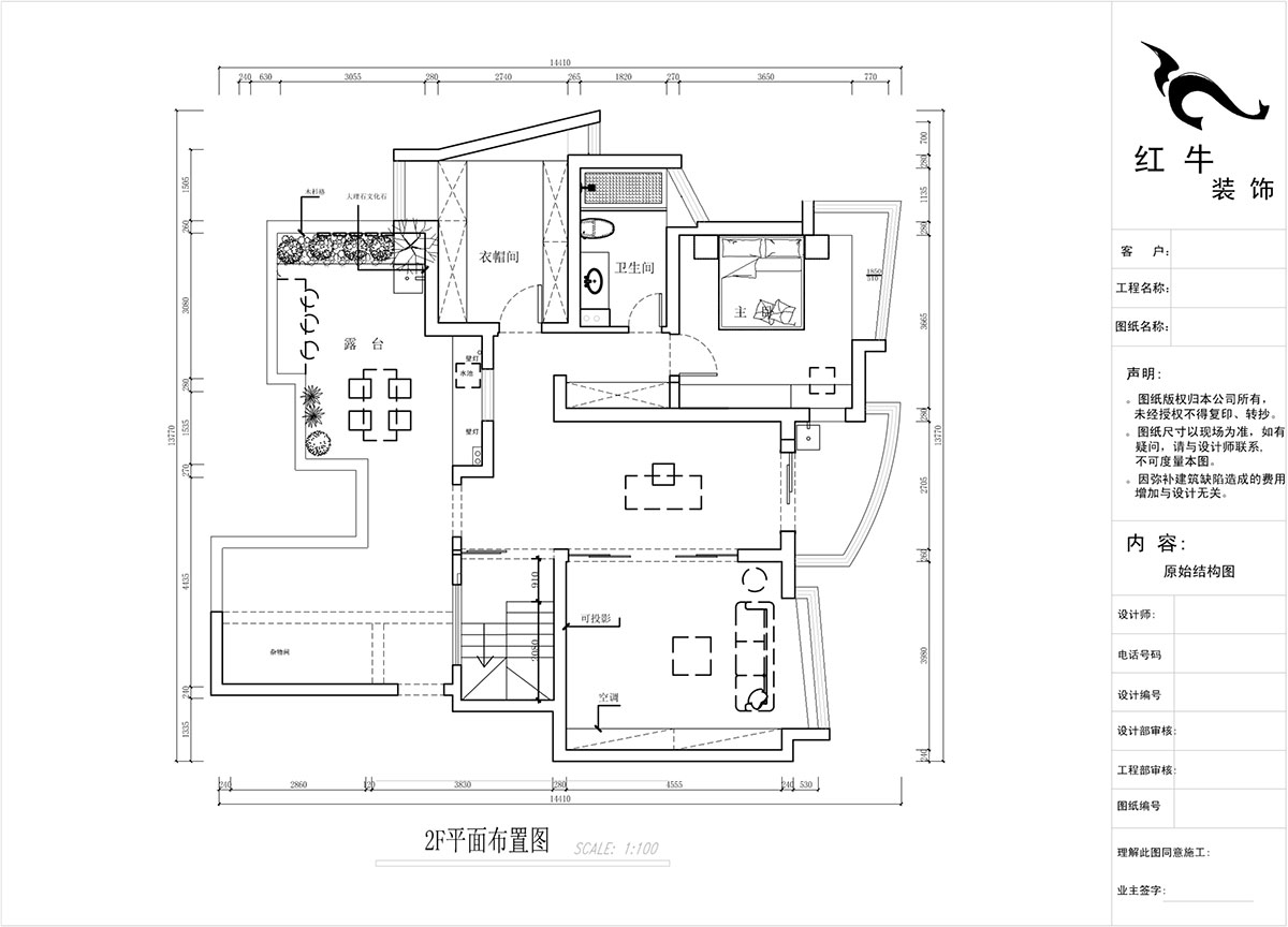
設計戶型:260㎡|5室4廳3衛
裝修類型:老房裝修
裝修方式:全包裝修
設計費服務費(元):1.5萬
施工費(元):18萬
主材、輔材的材料費總和(元):20萬
費用總和(元):38萬
主材品牌:L&D瓷磚、圣象地板、戴勝木門、開來櫥柜、法恩莎潔具、奧普吊頂
開工日期:2022年03月04日
竣工日期:2022年08月10日
項目經理:錢新平
改造前建筑缺陷:
房屋就是吧客餐廳打造的比較舒適,舍棄了一樓原來的臥室,改成了餐廳,原餐廳的地方就打造出一個大的門廳和開放式廚房,整個樓梯重新規劃走向,打造一個現代感極強的浪漫主義的風格,其他空間都是小的改動,根據客戶需求做了最大化利用。
方案設計說明:
整個家裝浪漫溫馨,一場夢想與現實的交織,形成夢幻的家居空間,感受浪漫、唯美、高雅的氣質。現代法式輕奢低調奢華,大氣高雅,高檔品質的家居裝飾,表現出女主人追求高品質生活。
在色系的運用上,大部的色調以淺色作為主色調,稍微用亮色進行點綴。從視覺的角度上來說,淺色與深色相比,是一種較為舒適、柔和的色調,再加上少許的亮色點綴,會使整個空間既有和諧統一的感覺,又突出了視覺層次感,給空間增添許多生氣和溫度。




家裝攻略
- 南京紅牛裝飾:始終如一,以品質說話,以服務鑄口碑!
- 再好的文案,都抵不過客戶的真實反饋!“三個最”【內附完工實景】
- 工地突擊巡檢|嚴把每一處細節,用心守護每一份安心!
- 南京紅牛裝飾再添榮譽,榮獲兩面錦旗,雙倍肯定,十分滿意!
- 南京115㎡現代簡約風裝修,每一處都將“實用”和“顏值”完美兼容!
- 裝修寶典:為何說企業文化是企業靈魂,是企業生存與發展的根本?
- 南京裝修公司紅牛裝飾工地突擊巡檢:一厘一毫堅守品質,一心一意守護新家!
- 南京裝修避坑指南:裝修材料的選擇,直接影響您入住新家的早晚?
- 南京比較靠譜的裝修公司?南京紅牛裝飾裝修寶典:新房裝修好多久可以入住?關鍵在于……
- 工地巡檢:雙節同慶,品質同行,嚴把每一道工序,用心守護夢想家!
- 避坑指南:老房改造二手舊房翻新注意這幾點,省心又省錢!
- 690億元!2025最后一批“國補”資金已下達!還可疊加企補!至高可省40000元!
- 【9月再添榮譽】業主說紅牛裝飾設計牛!監工牛!預算牛!超滿意!
- 九月秋意漸濃,南京紅牛裝飾工地巡檢步履不停,只為兌現品質承諾!
- “金九銀十”裝修黃金期,南京電視臺攜手紅牛裝飾發福利啦~
- 金秋暖心禮|一面錦旗,一句好評,一份信賴!
- 差別真的太大了!南京紅牛裝飾標準化水電工藝vs非正規/熟人施工隊的水電工藝!
- 金九銀十裝修季|南京紅牛裝飾工程總監:工地巡檢無小事,嚴苛落實工藝標準!
- 避坑指南:裝修行業門檻低,客戶陷信任危機!工期延誤、不斷加錢?!
- 家裝寶典:裝修不再走彎路,直擊高頻率痛難點附避坑指南!


