| 案例風格 | 簡中風格 | 案例戶型 | 平層 | 案例面積 | 150㎡ |
|---|---|---|---|---|---|
| 樓盤名稱 | 仁恒翠竹園 | 設 計 師 | 吳波 | 案例造價 | 定制家|全包20萬 |
南京裝修設計說明
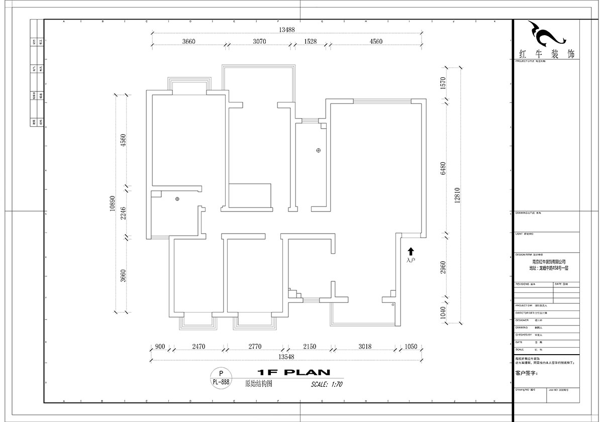
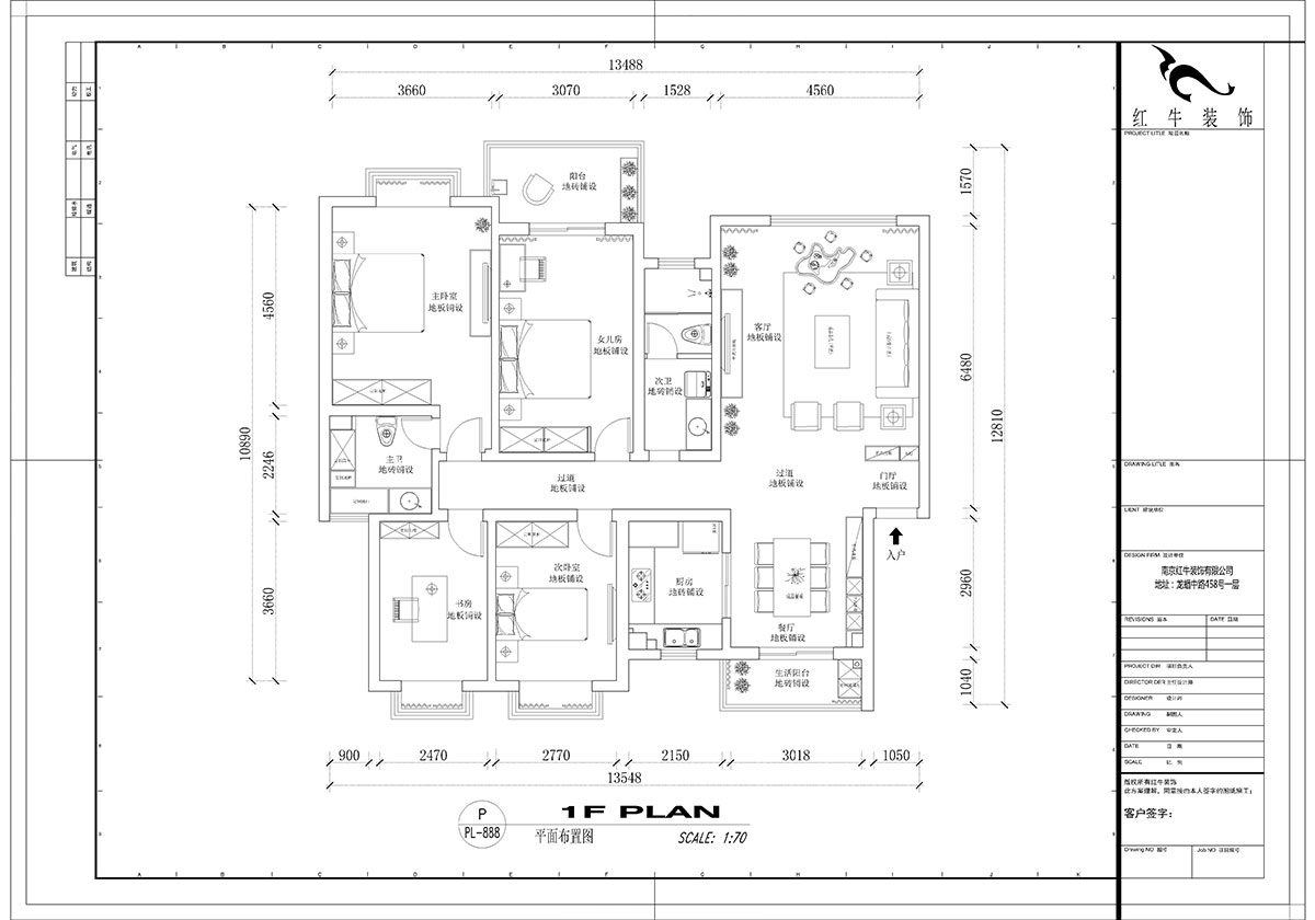
設計戶型:150㎡|4室2廳2衛
裝修方式:全包裝修
主材品牌:圣象地板、金豪森木門、歐派櫥柜、科勒潔具
方案設計說明:
一個充滿憧憬的家,總是希望家里處處都是驚喜,仿佛每個空間都有一份禮物在等待著自己。
主臥室簡單顯主人家的生活細致,閱讀燈的點綴更添氛圍,整體的風格及色彩的運用都是使空間更顯舒適輕松安靜的氛圍,放松、愉悅。
書房:無拘無束,自由自在,卻總能恰到好處地表達某種極難說出口的感情。
而此刻,在如此環境下的我們所創作出的文字似乎也可以熠熠發光。


家裝攻略
- 南京紅牛裝飾再添榮譽,榮獲兩面錦旗,雙倍肯定,十分滿意!
- 南京115㎡現代簡約風裝修,每一處都將“實用”和“顏值”完美兼容!
- 裝修寶典:為何說企業文化是企業靈魂,是企業生存與發展的根本?
- 南京裝修公司紅牛裝飾工地突擊巡檢:一厘一毫堅守品質,一心一意守護新家!
- 南京裝修避坑指南:裝修材料的選擇,直接影響您入住新家的早晚?
- 南京比較靠譜的裝修公司?南京紅牛裝飾裝修寶典:新房裝修好多久可以入住?關鍵在于……
- 工地巡檢:雙節同慶,品質同行,嚴把每一道工序,用心守護夢想家!
- 避坑指南:老房改造二手舊房翻新注意這幾點,省心又省錢!
- 690億元!2025最后一批“國補”資金已下達!還可疊加企補!至高可省40000元!
- 【9月再添榮譽】業主說紅牛裝飾設計牛!監工牛!預算牛!超滿意!
- 九月秋意漸濃,南京紅牛裝飾工地巡檢步履不停,只為兌現品質承諾!
- “金九銀十”裝修黃金期,南京電視臺攜手紅牛裝飾發福利啦~
- 金秋暖心禮|一面錦旗,一句好評,一份信賴!
- 差別真的太大了!南京紅牛裝飾標準化水電工藝vs非正規/熟人施工隊的水電工藝!
- 金九銀十裝修季|南京紅牛裝飾工程總監:工地巡檢無小事,嚴苛落實工藝標準!
- 避坑指南:裝修行業門檻低,客戶陷信任危機!工期延誤、不斷加錢?!
- 家裝寶典:裝修不再走彎路,直擊高頻率痛難點附避坑指南!
- 設計師工地巡檢,用腳步丈量細節,護航效果完美落地!
- 2025最后一批裝修“國補”要來了?!還可疊加額外優惠?這次能省多少?
- 避坑指南:盤點家裝中幾大高頻痛難點!業主應該如何應對?


