| 案例風格 | 現代簡約風格 | 案例戶型 | 平層 | 案例面積 | 97㎡ |
|---|---|---|---|---|---|
| 樓盤名稱 | 中南山錦花城 | 設 計 師 | 劉萍萍 | 案例造價 | 定制家|全包14萬 |
設計說明
設計戶型:97㎡|3室2廳2衛
裝修類型:老房裝修
裝修方式:全包裝修
設計費服務費(元):6900
施工費(元):6.5萬
主材、輔材的材料費總和(元):7.5萬
費用總和(元):14萬
主材品牌:L&D瓷磚、圣象地板、金豪森木門、開來櫥柜、法恩莎潔具、奧普吊頂
開工日期:2021年05月22日
竣工日期:2021年09月08日
項目經理:毛步友
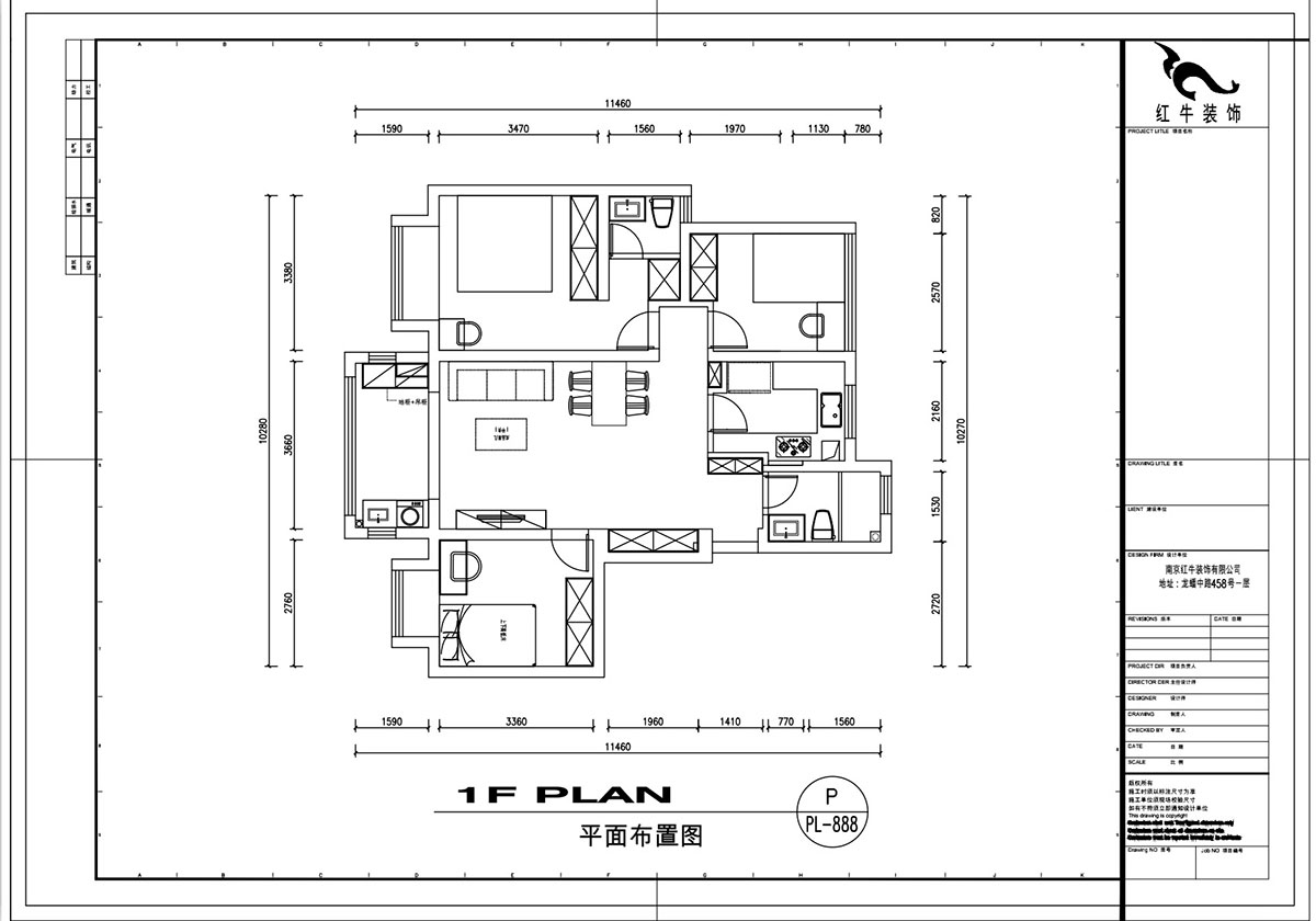
改造前建筑缺陷:
1、廚房空間太小,不夠用,過道和進門廳浪費,利用率比較低。
2、書房外面的空間浪費了。
3、主衛客戶不需要沖淋區域,希望多一些儲物空間。
方案設計說明:
本案設計的整體風格,定位為簡約風格。
業主是一對90后,房子一家5口人居住,老人負責帶小朋友,考慮到家里人口比較多,增加了一些儲物空間,首先利用了過道的區域,使得廚房的空間變大,這樣冰箱也有地方放了,進戶的鞋柜和玄關柜也解決了。其次主衛這塊,利用主衛的空間,保證衛生間使用方便的前提下,做了更多的儲物空間。




家裝攻略
- 南京紅牛裝飾:始終如一,以品質說話,以服務鑄口碑!
- 再好的文案,都抵不過客戶的真實反饋!“三個最”【內附完工實景】
- 工地突擊巡檢|嚴把每一處細節,用心守護每一份安心!
- 南京紅牛裝飾再添榮譽,榮獲兩面錦旗,雙倍肯定,十分滿意!
- 南京115㎡現代簡約風裝修,每一處都將“實用”和“顏值”完美兼容!
- 裝修寶典:為何說企業文化是企業靈魂,是企業生存與發展的根本?
- 南京裝修公司紅牛裝飾工地突擊巡檢:一厘一毫堅守品質,一心一意守護新家!
- 南京裝修避坑指南:裝修材料的選擇,直接影響您入住新家的早晚?
- 南京比較靠譜的裝修公司?南京紅牛裝飾裝修寶典:新房裝修好多久可以入住?關鍵在于……
- 工地巡檢:雙節同慶,品質同行,嚴把每一道工序,用心守護夢想家!
- 避坑指南:老房改造二手舊房翻新注意這幾點,省心又省錢!
- 690億元!2025最后一批“國補”資金已下達!還可疊加企補!至高可省40000元!
- 【9月再添榮譽】業主說紅牛裝飾設計牛!監工牛!預算牛!超滿意!
- 九月秋意漸濃,南京紅牛裝飾工地巡檢步履不停,只為兌現品質承諾!
- “金九銀十”裝修黃金期,南京電視臺攜手紅牛裝飾發福利啦~
- 金秋暖心禮|一面錦旗,一句好評,一份信賴!
- 差別真的太大了!南京紅牛裝飾標準化水電工藝vs非正規/熟人施工隊的水電工藝!
- 金九銀十裝修季|南京紅牛裝飾工程總監:工地巡檢無小事,嚴苛落實工藝標準!
- 避坑指南:裝修行業門檻低,客戶陷信任危機!工期延誤、不斷加錢?!
- 家裝寶典:裝修不再走彎路,直擊高頻率痛難點附避坑指南!


