| 案例風格 | 輕奢風格 | 案例戶型 | 平層 | 案例面積 | 90㎡ |
|---|---|---|---|---|---|
| 樓盤名稱 | 旭日愛上城5區 | 設 計 師 | 劉萍萍 | 案例造價 | 全包12.29萬 |
設計說明
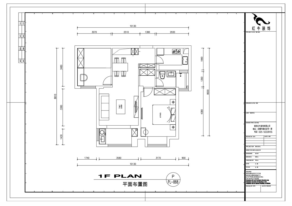
設計戶型:90㎡ | 2室2廳1衛
裝修類型:老房裝修
裝修方式:全包裝修
設計費服務費(元):6000
施工費(元):5.4萬
主材、輔材的材料費總和(元):6.89萬
費用總和(元):12.29萬
主材品牌:L&D瓷磚、李洋地板、戴勝木門、開來櫥柜、法恩莎潔具、奧普吊頂
開工日期:2020年10月18日
竣工日期:2021年02月08日
項目經理:張志飛
改造前建筑缺陷:
原空間儲物空間很少,廚房拐角小陽臺不合理,沒有利用起來。衛生間廚房的光線都不是很好。
方案設計說明:
本案設計的整體風格,定位為現代輕奢。
業主是一對90后小年輕,房子裝修明年結婚用的,平時工作繁忙,希望回到家后有一個簡單放松的環境。平面布置上留主臥,和多功能房,考慮現在,也考慮以后有小孩的情況,劃分明確。
客廳跟餐廳分為兩個獨立空間,布置很規整沒什么改動,主要利用來一些空間做儲物柜,增加收納。再有就是墻面的一些軟裝配飾。
把廚房陽臺的空間利用到衛生間里面,作為淋浴間,這樣不僅把原本浪費的空間利用起來,還可以利用原來干區臺盆空間做儲物柜。




家裝攻略
- 南京紅牛裝飾:始終如一,以品質說話,以服務鑄口碑!
- 再好的文案,都抵不過客戶的真實反饋!“三個最”【內附完工實景】
- 工地突擊巡檢|嚴把每一處細節,用心守護每一份安心!
- 南京紅牛裝飾再添榮譽,榮獲兩面錦旗,雙倍肯定,十分滿意!
- 南京115㎡現代簡約風裝修,每一處都將“實用”和“顏值”完美兼容!
- 裝修寶典:為何說企業文化是企業靈魂,是企業生存與發展的根本?
- 南京裝修公司紅牛裝飾工地突擊巡檢:一厘一毫堅守品質,一心一意守護新家!
- 南京裝修避坑指南:裝修材料的選擇,直接影響您入住新家的早晚?
- 南京比較靠譜的裝修公司?南京紅牛裝飾裝修寶典:新房裝修好多久可以入住?關鍵在于……
- 工地巡檢:雙節同慶,品質同行,嚴把每一道工序,用心守護夢想家!
- 避坑指南:老房改造二手舊房翻新注意這幾點,省心又省錢!
- 690億元!2025最后一批“國補”資金已下達!還可疊加企補!至高可省40000元!
- 【9月再添榮譽】業主說紅牛裝飾設計牛!監工牛!預算牛!超滿意!
- 九月秋意漸濃,南京紅牛裝飾工地巡檢步履不停,只為兌現品質承諾!
- “金九銀十”裝修黃金期,南京電視臺攜手紅牛裝飾發福利啦~
- 金秋暖心禮|一面錦旗,一句好評,一份信賴!
- 差別真的太大了!南京紅牛裝飾標準化水電工藝vs非正規/熟人施工隊的水電工藝!
- 金九銀十裝修季|南京紅牛裝飾工程總監:工地巡檢無小事,嚴苛落實工藝標準!
- 避坑指南:裝修行業門檻低,客戶陷信任危機!工期延誤、不斷加錢?!
- 家裝寶典:裝修不再走彎路,直擊高頻率痛難點附避坑指南!


