| 案例風格 | 美式風格 | 案例戶型 | 平層 | 案例面積 | 130㎡ |
|---|---|---|---|---|---|
| 樓盤名稱 | 楓丹白露24幢 | 設 計 師 | 郭志成 | 案例造價 | ¥201600 |
設計說明
設計戶型:130㎡ | 3室2廳2衛
裝修類型:老房裝修
裝修方式:全包裝修
設計費服務費(元):9100
施工費(元):52000
主材、輔材的材料費總和(元):149600
費用總和(元):201600
主材品牌:L&D瓷磚、李洋地板、戴勝木門、開來櫥柜、法恩莎潔具、奧普吊頂
開工日期:2020年10月8日
竣工日期:2021年1月28日
項目經理:張世海
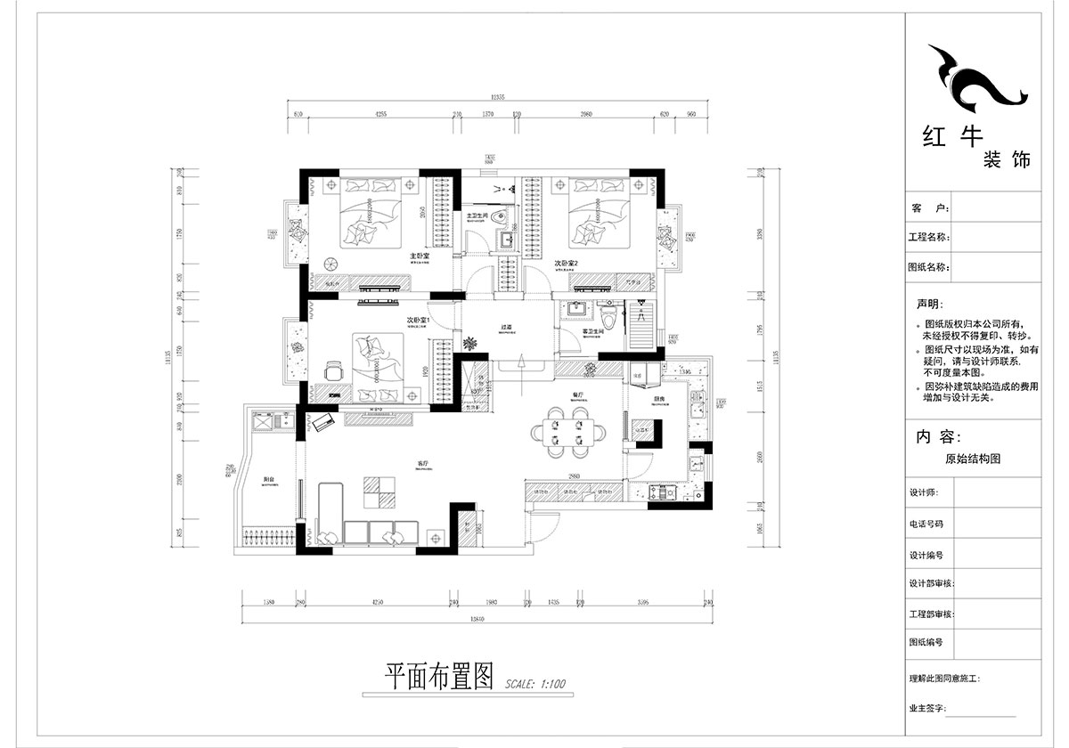
改造前建筑缺陷:
1、餐廳空間太過狹小,進門就給人感覺特別擁擠的感覺。
2、廚房空間細長狹小,影響正常的使用和美觀
3、餐廳北陽臺屬于房屋的死角,根本起不了什么作用
方案設計說明:
本案設計在跟客戶溝通后整體風格定位為輕奢簡美風
本戶型是三室兩廳兩衛的戶型,目前是一家三代居住,后面就是夫妻二人帶一個孩子為主,所以在空間布局上三個臥室基本保留不變。
在整個房屋平面布置上餐廳區域做了很大大的改動,將入戶的的小儲物間和餐廳的小儲物間全部拿掉,還餐廳一片整潔;把原有的廚房空間往后壓縮,原來閑置的后陽臺納入廚房里面,這樣調整下來,整個餐廳很干凈整潔又增加了收納空間。輕奢是一種優雅的生活態度,包涵奢華的氣質內涵;整體裝修的硬裝部分以流行灰色為主色,在優雅之上稍加的金屬線條裝飾,形成了自然而極致的家居風格。




家裝攻略
- 南京紅牛裝飾:始終如一,以品質說話,以服務鑄口碑!
- 再好的文案,都抵不過客戶的真實反饋!“三個最”【內附完工實景】
- 工地突擊巡檢|嚴把每一處細節,用心守護每一份安心!
- 南京紅牛裝飾再添榮譽,榮獲兩面錦旗,雙倍肯定,十分滿意!
- 南京115㎡現代簡約風裝修,每一處都將“實用”和“顏值”完美兼容!
- 裝修寶典:為何說企業文化是企業靈魂,是企業生存與發展的根本?
- 南京裝修公司紅牛裝飾工地突擊巡檢:一厘一毫堅守品質,一心一意守護新家!
- 南京裝修避坑指南:裝修材料的選擇,直接影響您入住新家的早晚?
- 南京比較靠譜的裝修公司?南京紅牛裝飾裝修寶典:新房裝修好多久可以入住?關鍵在于……
- 工地巡檢:雙節同慶,品質同行,嚴把每一道工序,用心守護夢想家!
- 避坑指南:老房改造二手舊房翻新注意這幾點,省心又省錢!
- 690億元!2025最后一批“國補”資金已下達!還可疊加企補!至高可省40000元!
- 【9月再添榮譽】業主說紅牛裝飾設計牛!監工牛!預算牛!超滿意!
- 九月秋意漸濃,南京紅牛裝飾工地巡檢步履不停,只為兌現品質承諾!
- “金九銀十”裝修黃金期,南京電視臺攜手紅牛裝飾發福利啦~
- 金秋暖心禮|一面錦旗,一句好評,一份信賴!
- 差別真的太大了!南京紅牛裝飾標準化水電工藝vs非正規/熟人施工隊的水電工藝!
- 金九銀十裝修季|南京紅牛裝飾工程總監:工地巡檢無小事,嚴苛落實工藝標準!
- 避坑指南:裝修行業門檻低,客戶陷信任危機!工期延誤、不斷加錢?!
- 家裝寶典:裝修不再走彎路,直擊高頻率痛難點附避坑指南!


