| 案例風格 | 現代簡約風格 | 案例戶型 | 平層 | 案例面積 | 115㎡ |
|---|---|---|---|---|---|
| 樓盤名稱 | 保利國際社區 | 設 計 師 | 劉曉芳 | 案例造價 | ¥183429 |
保利國際社區115㎡現代風格 | 想現場參觀新裝好的房子嗎?這里就有哦!
今天給大家帶來的是保利國際社區的設計作品。就該小區而言,各種戶型的研發設計,紅牛裝飾一應俱全。
一部分裝修完工的實景作品,可以在我們官網看到,沒有看過的朋友們請點擊下面的圖片,即可直達案例文章哦。
保利國際社區

目前,紅牛裝飾在保利國際社區已經設立了辦事處,如果您想要參觀該小區新裝修好的房子,可以來電預約哦!
好了,回歸正題,下面來欣賞今天的案例作品,來自保利國際社區。

▲ 保利國際社區-115㎡-現代風格

淺藍色的墻面由于飽和度不高,給人一種清新的感覺。

科技布材質沙發,既有布藝沙發的柔軟親膚效果,又有皮質沙發的易清潔優勢。

抽象裝飾畫上強烈的色彩賦予空間滿滿的藝術感染力。

保利國際社區115㎡現代風格--想現場參觀新裝好的房子嗎?這里就有哦!11餐廳.jpg

賞心悅目的餐具本身就可以做裝飾,擺在桌上還省去了廚房的收納空間。小巧精美的花籃則為用餐區域增加了一絲情調。

深藍色的地柜搭配白色的吊柜,用在廚房里面,呈現出廣闊感和潔凈感。

臥室沒有過多的裝飾,顯得簡潔明快,輕松柔和的色調更易使人進入睡眠狀態。

除了床邊的衣柜之外,主臥還包含了單獨的衣帽間,以后買再多的衣服都不用擔心收納問題啦。

柔軟的布藝床品與剛硬鐵藝的結合,營造出甜美又華麗的居室氛圍。

客房定制了榻榻米,還整合設計了衣柜、書桌等,集多功能于一身,空間利用率極高。

它還能起到茶室的作用,一個悠閑的午后,在這里品茗讀書,豈不是快事一件。

吊柜甚至于洗手臺面,全都延伸到馬桶的上方空間,具有很好的擴容功能。

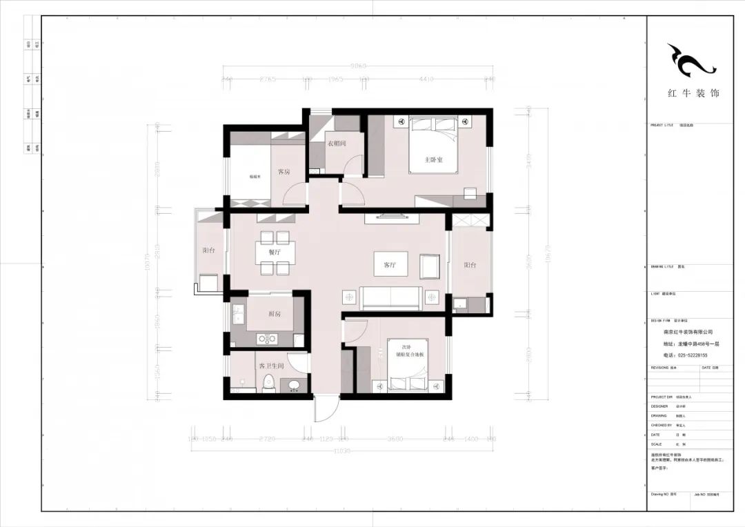
▲ 平面布置圖
最后再強調一下,如果想要參觀“保利國際社區”裝修好的房子,可以聯系我們喲!
家裝攻略
- 南京紅牛裝飾:始終如一,以品質說話,以服務鑄口碑!
- 再好的文案,都抵不過客戶的真實反饋!“三個最”【內附完工實景】
- 工地突擊巡檢|嚴把每一處細節,用心守護每一份安心!
- 南京紅牛裝飾再添榮譽,榮獲兩面錦旗,雙倍肯定,十分滿意!
- 南京115㎡現代簡約風裝修,每一處都將“實用”和“顏值”完美兼容!
- 裝修寶典:為何說企業文化是企業靈魂,是企業生存與發展的根本?
- 南京裝修公司紅牛裝飾工地突擊巡檢:一厘一毫堅守品質,一心一意守護新家!
- 南京裝修避坑指南:裝修材料的選擇,直接影響您入住新家的早晚?
- 南京比較靠譜的裝修公司?南京紅牛裝飾裝修寶典:新房裝修好多久可以入住?關鍵在于……
- 工地巡檢:雙節同慶,品質同行,嚴把每一道工序,用心守護夢想家!
- 避坑指南:老房改造二手舊房翻新注意這幾點,省心又省錢!
- 690億元!2025最后一批“國補”資金已下達!還可疊加企補!至高可省40000元!
- 【9月再添榮譽】業主說紅牛裝飾設計牛!監工牛!預算牛!超滿意!
- 九月秋意漸濃,南京紅牛裝飾工地巡檢步履不停,只為兌現品質承諾!
- “金九銀十”裝修黃金期,南京電視臺攜手紅牛裝飾發福利啦~
- 金秋暖心禮|一面錦旗,一句好評,一份信賴!
- 差別真的太大了!南京紅牛裝飾標準化水電工藝vs非正規/熟人施工隊的水電工藝!
- 金九銀十裝修季|南京紅牛裝飾工程總監:工地巡檢無小事,嚴苛落實工藝標準!
- 避坑指南:裝修行業門檻低,客戶陷信任危機!工期延誤、不斷加錢?!
- 家裝寶典:裝修不再走彎路,直擊高頻率痛難點附避坑指南!






