| 案例風格 | 北歐風格 | 案例戶型 | 平層 | 案例面積 | 89㎡ |
|---|---|---|---|---|---|
| 樓盤名稱 | 禧和苑 | 設 計 師 | 朱明琪 | 案例造價 | 全包11.8萬 |
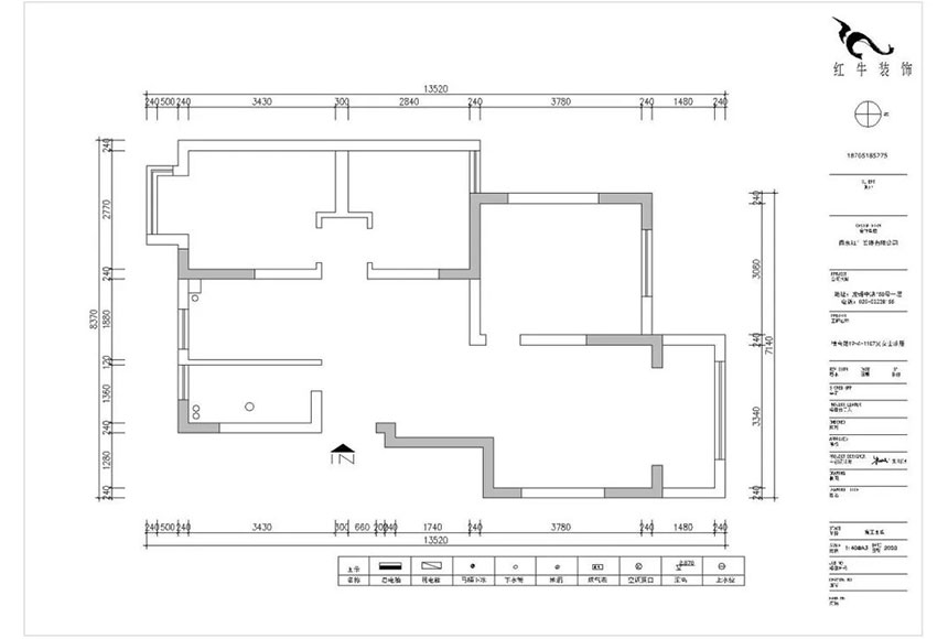
這套89平米的房子,主要改動在入戶與次臥兒童房,整體戶型是經典的小三房設計。主要空間浪費在次臥與兒童房過道區域,更改門洞位置,拉升臥室空間,相應改動廚房,移動冰箱。入戶增加換鞋與儲藏柜空間。打造輕松舒適的北歐風居家環境。
本案以輕松愉悅的北歐風設計感與溫馨家的氛圍為出發點,公共區域客廳用霧霾藍背景墻,與其他區域形成鮮明對比,著重空間視覺重點。私密區域,次臥增加梳妝臺,床頭一側的小吊燈,不對稱的設計,不拘一格。兒童房榻榻米,與淡黃色的乳膠漆,顯得空間童趣又具有足夠的儲藏空間。整體營造北歐風與溫馨家的氛圍。


禧和苑89㎡北歐風格 | 經典小三房設計

■ 樓盤名稱:禧和苑
■ 設計風格:北歐風格
■ 建筑面積:89㎡
本案是經典的小三房設計,以輕松愉悅的北歐風為出發點,營造出溫馨舒適的家居氛圍。
戶型圖

▲ 原始戶型圖

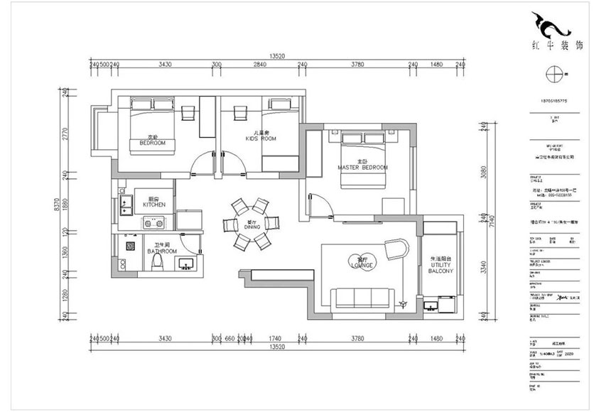
▲ 平面布置圖
入戶處增加了換鞋與儲藏的空間,功能豐富,提高空間利用率。
在次臥與兒童房之間的過道區域有些浪費,所以把門洞位置進行更改,增加臥室空間。
相應的,廚房也需要進行改動,把冰箱移動到廚房外面,使得廚房內部的操作空間足夠。

▲ 立體設計圖
客廳設計

客廳的霧霾藍背景墻,與其他區域形成鮮明對比,成為空間的視覺重點。鋪設地毯使沙發區更有整體感,別出心裁的三角形茶幾,成為一道亮麗的風景線。
餐廳設計

圓形餐桌互動性很強,家人圍桌而坐,顯得更加親密。客餐廳選擇的灰色瓷磚,無論是耐磨還是易清潔方面,都符合大多數業主的追求。
廚房設計

小白磚就像小白鞋一樣,堪稱“百搭”,本案廚房的墻面使用了小白磚,打造出既明亮又有趣的烹調空間。
主臥設計

主臥的家具都擁有平滑流暢的線條,灰色的衣柜、床品,搭配深藍色的窗簾,呈現輕松舒緩的氛圍。床頭對稱安裝壁燈,解放床頭柜臺面空間的同時,也讓臥室顯得更有情調。
客臥設計

霧霾藍背景墻與粉色的碰撞,呈現出清新的糖果色調。別致的電鍍黃銅細腿化妝臺造型輕盈,搭配優雅的橢圓化妝鏡,顯得非常精致。
兒童房設計

淺藍色背景下,墻面、窗簾、床品上充滿童趣的圖案,顯示這是活潑生動的一個兒童空間。書桌上的擱板設計,不僅能夠收納常用書籍,還能擺放一些裝飾品,讓空間靈動不少。
衛生間設計

洗手臺沒有到底,能夠減少水汽對它的腐蝕,此外還方便打掃。入墻式馬桶非常簡潔,顏值頗高。鏡柜既是鏡子,又能用來收納,使得衛生間的物品井井有條。

家裝攻略
- 南京紅牛裝飾:始終如一,以品質說話,以服務鑄口碑!
- 再好的文案,都抵不過客戶的真實反饋!“三個最”【內附完工實景】
- 工地突擊巡檢|嚴把每一處細節,用心守護每一份安心!
- 南京紅牛裝飾再添榮譽,榮獲兩面錦旗,雙倍肯定,十分滿意!
- 南京115㎡現代簡約風裝修,每一處都將“實用”和“顏值”完美兼容!
- 裝修寶典:為何說企業文化是企業靈魂,是企業生存與發展的根本?
- 南京裝修公司紅牛裝飾工地突擊巡檢:一厘一毫堅守品質,一心一意守護新家!
- 南京裝修避坑指南:裝修材料的選擇,直接影響您入住新家的早晚?
- 南京比較靠譜的裝修公司?南京紅牛裝飾裝修寶典:新房裝修好多久可以入住?關鍵在于……
- 工地巡檢:雙節同慶,品質同行,嚴把每一道工序,用心守護夢想家!
- 避坑指南:老房改造二手舊房翻新注意這幾點,省心又省錢!
- 690億元!2025最后一批“國補”資金已下達!還可疊加企補!至高可省40000元!
- 【9月再添榮譽】業主說紅牛裝飾設計牛!監工牛!預算牛!超滿意!
- 九月秋意漸濃,南京紅牛裝飾工地巡檢步履不停,只為兌現品質承諾!
- “金九銀十”裝修黃金期,南京電視臺攜手紅牛裝飾發福利啦~
- 金秋暖心禮|一面錦旗,一句好評,一份信賴!
- 差別真的太大了!南京紅牛裝飾標準化水電工藝vs非正規/熟人施工隊的水電工藝!
- 金九銀十裝修季|南京紅牛裝飾工程總監:工地巡檢無小事,嚴苛落實工藝標準!
- 避坑指南:裝修行業門檻低,客戶陷信任危機!工期延誤、不斷加錢?!
- 家裝寶典:裝修不再走彎路,直擊高頻率痛難點附避坑指南!


