| 案例風格 | 現代簡約風格 | 案例戶型 | 平層 | 案例面積 | 160㎡ |
|---|---|---|---|---|---|
| 樓盤名稱 | 電建洺悅府 | 設 計 師 | 蔣琛 | 案例造價 | |

■ 樓盤:電建洺悅府
■ 面積:160㎡
■ 設計:現代風格
■ 出品:紅牛裝飾
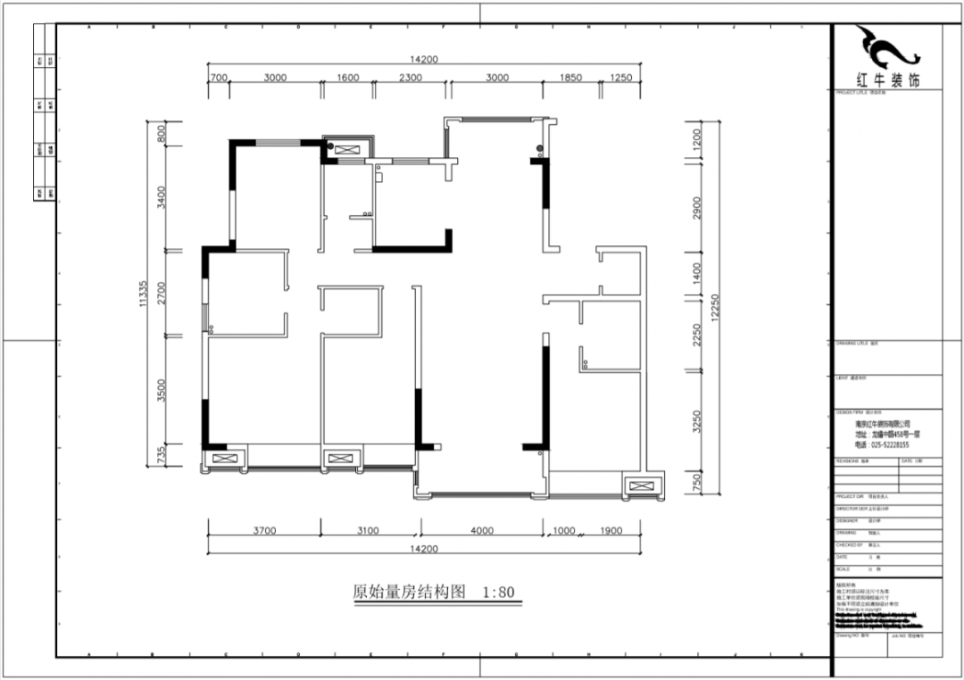
戶型分析

該戶型南北通透,四房兩廳三衛,空間具有高度流暢性,功能整體規劃也比較完整。但是還有一些地方需要調整,才能使空間舒適性和利用率得以提升。
調整建議

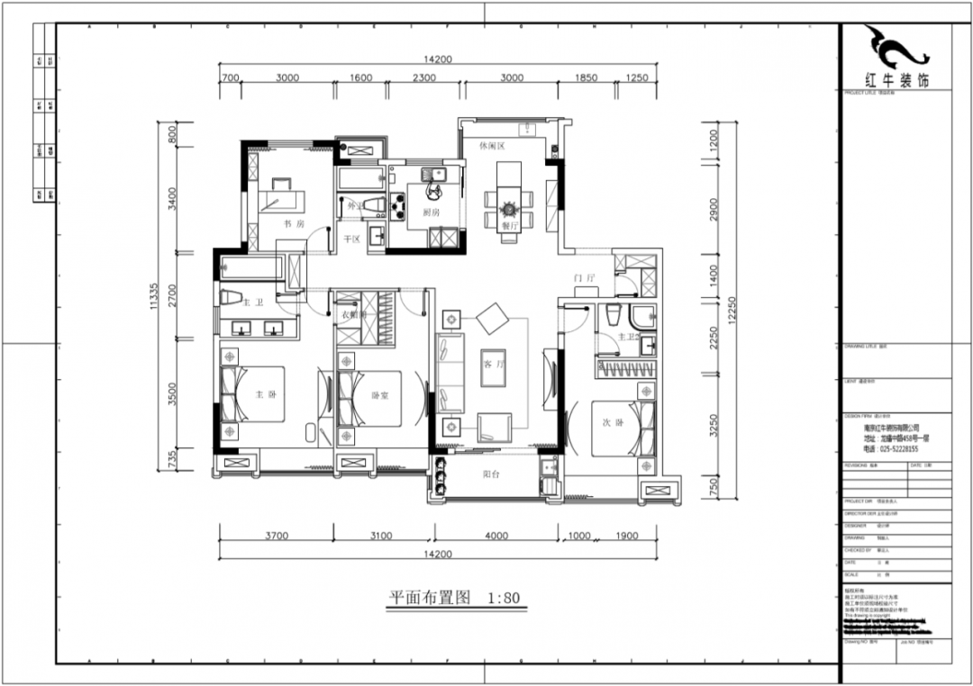
方案一:
這個方案改動不大,進門儲藏間在細節上重新規劃,滿足家庭收納的同時,也要滿足進門玄關的功能需求。
次臥室內衛生間和整個房間的尺寸比例有問題,所以建議把衛生間和臥室共用的墻體重新往衛生間縮小50公分,這個兩個空間都能實現功能性,還能提高居住舒適度。
餐廳和北陽臺打通,增大空間尺寸和采光,整個客餐廳的通透性好了很多。在北陽臺窗戶下方設計一排吧臺柜,整合了西廚,廊道及收納等多功能。
在這個方案中,主衛設計了淋浴,浴缸的雙重功能,功能方面和舒適度上都很強。

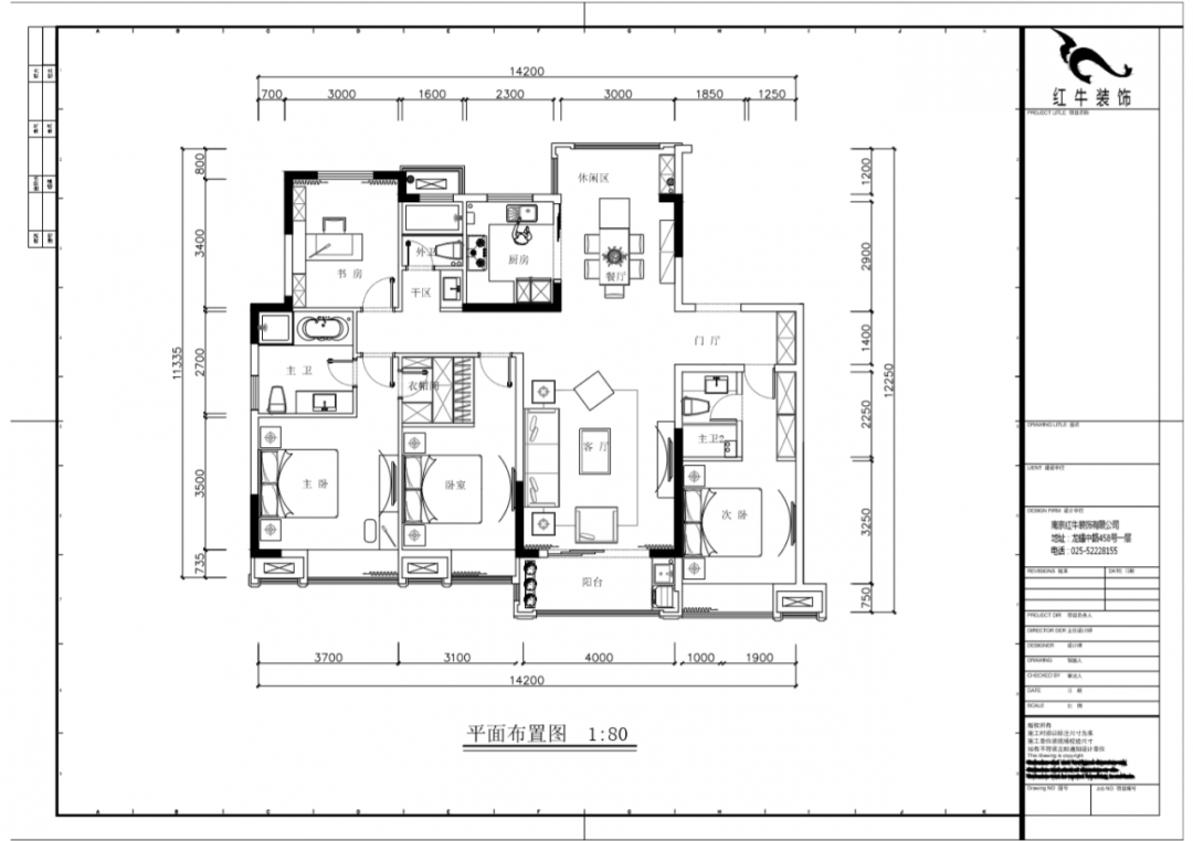
方案二:
這個方案把次臥室的進門方向做個一個調整,門就不會出現在客廳的背景墻上,不會破壞客廳的整體性。
為了避開次臥門和入戶門正對著的風水問題,我們把儲藏室打開,只留一個進門的鞋柜功能,把次臥室的門開在進門的玄關區。
接著調整次臥衛生間的方向,在門后設計一組衣柜。因為預留內部衣柜的話,衛生間尺寸必須縮小,如果可以接受這樣的設計,衛生間就會寬敞許多。
效果圖欣賞

主色調保持黑白的顏色,局部使用金屬色,給整個空間加些許輕奢的質感。沙發組合上延伸了背景的色系,使用了橘色的邊椅提升空間色彩和層次。

對稱設計的高級護墻板加上金屬線條的點綴,中間爵士白大理石板材的鋪貼,讓整個背景層次分明。黑色亮光的電視柜,色彩對比強烈,彰顯極致的魅力。

整個餐廳由餐桌,島臺,吧臺構成,平時在餐廳就可以泡泡茶或者洗洗水果,非常方便。餐邊柜的設計,和進門鞋柜在某個角度也做了一個延展,整個動線非常流暢。

入戶的設計中,換鞋凳,掛鉤,穿衣鏡,這一切看似簡單,卻串聯起來整個家庭生活所必須要有的功能。進入次臥的門采用隱形門的設計,這樣和整個柜子連接在一起,空間更具有整體感。

簡單的線條勾勒出整個背景,簡約而不失檔次。藍色的背景沒有到頂的設計是空間的整個亮點,和吊燈和壁燈一起的錯位設計,增加了空間的層次。藍黃的顏色搭配,使得空間層次更加豐富。

幾何圖案的藍色地毯活潑又不失品位,能夠調節臥室的色彩,給簡潔風格的臥室添上靚麗的一筆。

臥室的布置上遵循黑白灰的三色平衡,局部的跳色設計,賦予了空間獨特氣質。

書柜采用了上部敞開的設計,不會讓空間過于沉悶,另外可以擺放一些業主的收藏,整體非常和諧美觀。

家裝攻略
- 南京紅牛裝飾:始終如一,以品質說話,以服務鑄口碑!
- 再好的文案,都抵不過客戶的真實反饋!“三個最”【內附完工實景】
- 工地突擊巡檢|嚴把每一處細節,用心守護每一份安心!
- 南京紅牛裝飾再添榮譽,榮獲兩面錦旗,雙倍肯定,十分滿意!
- 南京115㎡現代簡約風裝修,每一處都將“實用”和“顏值”完美兼容!
- 裝修寶典:為何說企業文化是企業靈魂,是企業生存與發展的根本?
- 南京裝修公司紅牛裝飾工地突擊巡檢:一厘一毫堅守品質,一心一意守護新家!
- 南京裝修避坑指南:裝修材料的選擇,直接影響您入住新家的早晚?
- 南京比較靠譜的裝修公司?南京紅牛裝飾裝修寶典:新房裝修好多久可以入住?關鍵在于……
- 工地巡檢:雙節同慶,品質同行,嚴把每一道工序,用心守護夢想家!
- 避坑指南:老房改造二手舊房翻新注意這幾點,省心又省錢!
- 690億元!2025最后一批“國補”資金已下達!還可疊加企補!至高可省40000元!
- 【9月再添榮譽】業主說紅牛裝飾設計牛!監工牛!預算牛!超滿意!
- 九月秋意漸濃,南京紅牛裝飾工地巡檢步履不停,只為兌現品質承諾!
- “金九銀十”裝修黃金期,南京電視臺攜手紅牛裝飾發福利啦~
- 金秋暖心禮|一面錦旗,一句好評,一份信賴!
- 差別真的太大了!南京紅牛裝飾標準化水電工藝vs非正規/熟人施工隊的水電工藝!
- 金九銀十裝修季|南京紅牛裝飾工程總監:工地巡檢無小事,嚴苛落實工藝標準!
- 避坑指南:裝修行業門檻低,客戶陷信任危機!工期延誤、不斷加錢?!
- 家裝寶典:裝修不再走彎路,直擊高頻率痛難點附避坑指南!


