| 案例風格 | 美式風格 | 案例戶型 | 平層 | 案例面積 | 125㎡ |
|---|---|---|---|---|---|
| 樓盤名稱 | 保利金地貝克灣 | 設 計 師 | 魏利利 | 案例造價 | |

■ 樓盤:保利金地貝克灣
■ 面積:125㎡
■ 設計:美式風格
■ 出品:紅牛裝飾
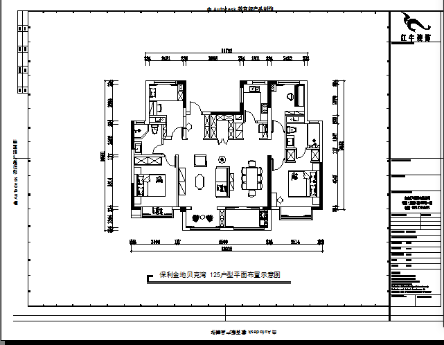
戶型分析
本戶型通風采光都很好,只要根據業主要求優化一下,就能明確功能劃分,提高利用率,讓房屋更有效的為居住者服務。

可以優化的地方有以下幾點:
1、進門入戶位置;
2、進入主臥室的過道;
3、主臥室和北臥室的門對門距離太小;
4、大陽臺可以進行改動,提高利用率。
調整建議

方案一:
入戶空間重新規劃,通過新砌墻體,劃分出玄關衣帽區、和儲藏室、水吧臺位置。不僅提高利用率,增大儲物空間,也讓空間富有層次感,私密性更強。
安排兒童臥室和老人房安排在空間左側,主臥室和多功能房在右側,互不影響。
變動兒童房門洞的位置,好處就是南北通透,而且離公衛更近一些。
多功能室的門內移,從距離上拉開門對門的過道空間。
大陽臺中間用實體墻隔開,一分為二。
靠近客廳的定義為休閑陽臺,不需要移門,直接和客廳融為一體,形成視野開闊的室內空間。
靠近餐廳區域的為功能陽臺,提供清潔及洗衣晾曬功能。

方案二:
入戶空間重新規劃,改變原始動線,劃分出完全獨立的玄關,采用鏤空式隔斷,不影響光線和通風。
進入玄關埡口處,才真正意義上進了生活區。整個空間采用環形動線設計,客餐廳,西廚連成一體,暢通無阻,中間島臺,不僅增大臺面利用率,偶爾也是臨時辦公的好地方。
兩處衛生間都設計成完全獨立的形式,保證兩側臥室都能使用。
采用分散儲物法,各個空間都設計儲物空間,例如兒童房的榻榻米式收納,陽臺的儲物柜打造,滿足了日常儲物需求,讓家里看過去整潔干凈。
效果圖欣賞

客餐廳主要運用飽和度低的色彩,讓空間看起來更顯雅致,色塊之間相互碰撞,帶給居住者不一樣的居家環境。

家具本身的線條感,加上閃耀著的金屬光澤,搭配華麗的吊燈,給客廳帶來奢華的感受。

飄窗給臥室提供了一處休閑場所,飄窗柜不僅可以起到收納的作用,還是一個很好的展示柜。

硬包壁畫是水墨元素的現代表達,凸顯中式內涵,非常適合運用在老人房。

女兒房的基調是夢幻的粉色,給人一種甜美、溫和的感受。

家裝攻略
- 南京紅牛裝飾:始終如一,以品質說話,以服務鑄口碑!
- 再好的文案,都抵不過客戶的真實反饋!“三個最”【內附完工實景】
- 工地突擊巡檢|嚴把每一處細節,用心守護每一份安心!
- 南京紅牛裝飾再添榮譽,榮獲兩面錦旗,雙倍肯定,十分滿意!
- 南京115㎡現代簡約風裝修,每一處都將“實用”和“顏值”完美兼容!
- 裝修寶典:為何說企業文化是企業靈魂,是企業生存與發展的根本?
- 南京裝修公司紅牛裝飾工地突擊巡檢:一厘一毫堅守品質,一心一意守護新家!
- 南京裝修避坑指南:裝修材料的選擇,直接影響您入住新家的早晚?
- 南京比較靠譜的裝修公司?南京紅牛裝飾裝修寶典:新房裝修好多久可以入住?關鍵在于……
- 工地巡檢:雙節同慶,品質同行,嚴把每一道工序,用心守護夢想家!
- 避坑指南:老房改造二手舊房翻新注意這幾點,省心又省錢!
- 690億元!2025最后一批“國補”資金已下達!還可疊加企補!至高可省40000元!
- 【9月再添榮譽】業主說紅牛裝飾設計牛!監工牛!預算牛!超滿意!
- 九月秋意漸濃,南京紅牛裝飾工地巡檢步履不停,只為兌現品質承諾!
- “金九銀十”裝修黃金期,南京電視臺攜手紅牛裝飾發福利啦~
- 金秋暖心禮|一面錦旗,一句好評,一份信賴!
- 差別真的太大了!南京紅牛裝飾標準化水電工藝vs非正規/熟人施工隊的水電工藝!
- 金九銀十裝修季|南京紅牛裝飾工程總監:工地巡檢無小事,嚴苛落實工藝標準!
- 避坑指南:裝修行業門檻低,客戶陷信任危機!工期延誤、不斷加錢?!
- 家裝寶典:裝修不再走彎路,直擊高頻率痛難點附避坑指南!


