| 案例風格 | 美式風格 | 案例戶型 | 平層 | 案例面積 | 115㎡ |
|---|---|---|---|---|---|
| 樓盤名稱 | 萬科光明城市 | 設 計 師 | 仇美蓉 | 案例造價 | |
南京萬科光明城市115㎡簡美風格 | 適合三代人的家居環境

■ 樓盤名稱:萬科光明城市
■ 設計風格:簡美風格
■ 建筑面積:115㎡
簡美風家裝以實用性為主,不過分強調華麗,通過簡潔明快的線條設計和素雅溫馨的色調,打造美觀舒適的住宅環境。
客廳設計

客廳的設計中沒有使用特別復雜繁瑣的元素,通過石膏線自身具備的藝術表現力,就已經將墻面裝飾地分外優雅。

黑色波導線內,整磚菱形鋪貼,加上黑色磚的點綴,使得整個空間非常靈動。
餐廳設計

橢圓形的餐桌集齊長方形餐桌和圓形餐桌的優點,沒有尖角不會磕碰到人,能夠容納的人數也多。

同樣款式、不同顏色的餐椅的互補組合,帶來極佳的視覺沖擊感,使得餐廳空間充滿活力。

多功能餐邊柜,封閉式柜體儲存一些不常用的物品,玻璃柜擺放裝飾品,開放格內可以用來放些隨身物品。
玄關設計

儲物柜的設計起到了隔斷使用,對客廳起到一定的遮蔽作用。開門后迎面而來的是一幅美麗的裝飾畫,能夠產生愉悅的視覺享受。
廚房設計

U形廚房布局動線合理,不會對空間造成浪費。白色給人一種純凈的感覺,也讓空間顯得寬敞通透不少。
主臥設計

臥室做了一個空間層次的對稱,燈具、家具的選擇奠定了臥室典雅秀美的基礎,桔色的點綴顯露出生機勃勃的氣質。

老人房設計

老人房的色彩上偏古樸,色調平和,整體沉穩淡雅。家具擁有圓滑的線條,居住更加舒適。
兒童房設計

豎條紋的墻面裝飾,讓空間看起來非常的開闊,簡潔的裝修依然無法掩蓋設計的大氣。
衛生間設計

根據房屋結構,規劃出獨立的洗衣房區域,位于衛生間內部。

設計師:仇美蓉
擅長風格:現代簡約、歐式風格、混搭風格、新中式風格、新古典風格
設計理念:功能第一,形式第二。以人為本,人性化設計。以物質技術手段和藝術手段為人們的生活創造理想的生活環境。
作品小區:世茂君望墅、衛橋新村、康盛花園、藍光黑鉆公館、中糧鴻云、牡丹里、保利羅蘭春天、天潤城、雙塘景園、九龍盛世園、漢中新城、青秀城、益樂苑、紫金華府、高科榮境、亞東城、京東紫金、武夷綠洲。
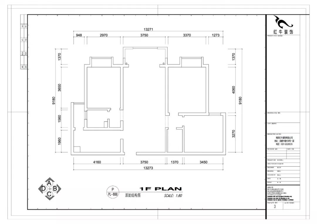
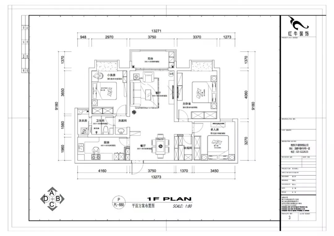
戶型圖

▲ 原始戶型圖

▲ 平面布置圖


家裝攻略
- 南京紅牛裝飾:始終如一,以品質說話,以服務鑄口碑!
- 再好的文案,都抵不過客戶的真實反饋!“三個最”【內附完工實景】
- 工地突擊巡檢|嚴把每一處細節,用心守護每一份安心!
- 南京紅牛裝飾再添榮譽,榮獲兩面錦旗,雙倍肯定,十分滿意!
- 南京115㎡現代簡約風裝修,每一處都將“實用”和“顏值”完美兼容!
- 裝修寶典:為何說企業文化是企業靈魂,是企業生存與發展的根本?
- 南京裝修公司紅牛裝飾工地突擊巡檢:一厘一毫堅守品質,一心一意守護新家!
- 南京裝修避坑指南:裝修材料的選擇,直接影響您入住新家的早晚?
- 南京比較靠譜的裝修公司?南京紅牛裝飾裝修寶典:新房裝修好多久可以入住?關鍵在于……
- 工地巡檢:雙節同慶,品質同行,嚴把每一道工序,用心守護夢想家!
- 避坑指南:老房改造二手舊房翻新注意這幾點,省心又省錢!
- 690億元!2025最后一批“國補”資金已下達!還可疊加企補!至高可省40000元!
- 【9月再添榮譽】業主說紅牛裝飾設計牛!監工牛!預算牛!超滿意!
- 九月秋意漸濃,南京紅牛裝飾工地巡檢步履不停,只為兌現品質承諾!
- “金九銀十”裝修黃金期,南京電視臺攜手紅牛裝飾發福利啦~
- 金秋暖心禮|一面錦旗,一句好評,一份信賴!
- 差別真的太大了!南京紅牛裝飾標準化水電工藝vs非正規/熟人施工隊的水電工藝!
- 金九銀十裝修季|南京紅牛裝飾工程總監:工地巡檢無小事,嚴苛落實工藝標準!
- 避坑指南:裝修行業門檻低,客戶陷信任危機!工期延誤、不斷加錢?!
- 家裝寶典:裝修不再走彎路,直擊高頻率痛難點附避坑指南!


