| 案例風格 | 現代簡約風格 | 案例戶型 | 平層 | 案例面積 | 140 |
|---|---|---|---|---|---|
| 樓盤名稱 | 保利國際社區 | 設 計 師 | 劉曉芳 | 案例造價 | |
南京保利國際社區140㎡現代風格 | 四室二廳大戶型,寬敞開闊又舒適!

■ 樓盤名稱:保利國際社區
■ 設計風格:現代風格
■ 建筑面積:140㎡
現代簡約離不開高純度色彩、線條簡潔的家具、到位的軟裝。
煙熏色系列家具,獨特的質感使家具倍感時尚大氣,舒適與美觀并存。在配飾上,延續了黑白灰的主色調,以簡潔的造型、完美的細節,營造出時尚前衛的感覺。
本案在簡約的同時又輔以混搭,給空間注入新元素,富有趣味性。希望能讓業主在忙碌一天之后回到家里,能夠獲得徹底的放松!
客廳設計

客廳—玄關—餐廳的模式,界限分明,營造出寬敞大氣的空間效果。

電視背景墻上的大理石瓷磚,簡潔大方,同時不失時尚,適合這樣的現代風客廳。

吊頂采用無主燈設計,選用磁吸軌道燈,現代感更強,加上壁燈、筒燈等,燈光很有層次感。

方形的木質茶幾,自然樸實又自帶高級質感,與沙發區的設計非常和諧。

餐廳設計

黑白灰的餐桌椅,搭載一盞硬朗造型的吊燈,餐邊柜上擺放了裝飾品,突顯出小資情趣。

桌旗與餐具的搭配,讓餐廳顯得更加的高檔大方,與客廳裝飾品呼應的顏色,體現家裝整體的和諧性。
主臥設計

床側擺放圓形床頭柜,上面放著清新的綠植,帶來清新自然的空間氛圍。

主臥配備的衛生間,專門安裝了浴缸,忙碌一天之后能夠享受閑適的泡澡時光。
次臥設計

榻榻米的設計,合理規劃空間的同時又美觀實用,以白色系為主,讓空間更有寬敞之感。
兒童房設計

地面鋪著充滿童趣的墊子,倚墻而立的是裝滿玩具的書架,無不顯示出這是一處孩童樂園。
衛生間設計

公共衛生間雖然空間不大,但是各功能俱全,細節處理用心,給人一種精致干練的感受。

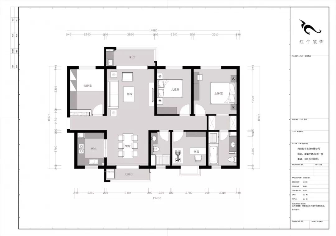
▲平面布置圖
家裝攻略
- 南京紅牛裝飾:始終如一,以品質說話,以服務鑄口碑!
- 再好的文案,都抵不過客戶的真實反饋!“三個最”【內附完工實景】
- 工地突擊巡檢|嚴把每一處細節,用心守護每一份安心!
- 南京紅牛裝飾再添榮譽,榮獲兩面錦旗,雙倍肯定,十分滿意!
- 南京115㎡現代簡約風裝修,每一處都將“實用”和“顏值”完美兼容!
- 裝修寶典:為何說企業文化是企業靈魂,是企業生存與發展的根本?
- 南京裝修公司紅牛裝飾工地突擊巡檢:一厘一毫堅守品質,一心一意守護新家!
- 南京裝修避坑指南:裝修材料的選擇,直接影響您入住新家的早晚?
- 南京比較靠譜的裝修公司?南京紅牛裝飾裝修寶典:新房裝修好多久可以入住?關鍵在于……
- 工地巡檢:雙節同慶,品質同行,嚴把每一道工序,用心守護夢想家!
- 避坑指南:老房改造二手舊房翻新注意這幾點,省心又省錢!
- 690億元!2025最后一批“國補”資金已下達!還可疊加企補!至高可省40000元!
- 【9月再添榮譽】業主說紅牛裝飾設計牛!監工牛!預算牛!超滿意!
- 九月秋意漸濃,南京紅牛裝飾工地巡檢步履不停,只為兌現品質承諾!
- “金九銀十”裝修黃金期,南京電視臺攜手紅牛裝飾發福利啦~
- 金秋暖心禮|一面錦旗,一句好評,一份信賴!
- 差別真的太大了!南京紅牛裝飾標準化水電工藝vs非正規/熟人施工隊的水電工藝!
- 金九銀十裝修季|南京紅牛裝飾工程總監:工地巡檢無小事,嚴苛落實工藝標準!
- 避坑指南:裝修行業門檻低,客戶陷信任危機!工期延誤、不斷加錢?!
- 家裝寶典:裝修不再走彎路,直擊高頻率痛難點附避坑指南!


