| 案例風格 | 地中海風格 | 案例戶型 | 平層 | 案例面積 | 125㎡ |
|---|---|---|---|---|---|
| 樓盤名稱 | 燕江府 | 設 計 師 | 劉曉芳 | 案例造價 | 20萬 |
南京燕江府125平米地中海風格裝修 | 主打藍白的浪漫情懷
本方案是以地中海風格為主,是一家三口居住, 對于地中海風格的設計來說,白色和藍色是兩個主打,給人一種陽光而自然的感覺。
整個裝飾上,拱形門和半拱形門馬蹄狀的門扇,修邊合適的木制家具都是地中海風格的經典搭配元素,到處都充滿著和諧和溫馨,讓人心情舒暢。
簡單質樸的肌理墻面渲染著地中海的情懷,能滿足人們對自然舒適生活的需求,以及對未來美好生活的憧憬。


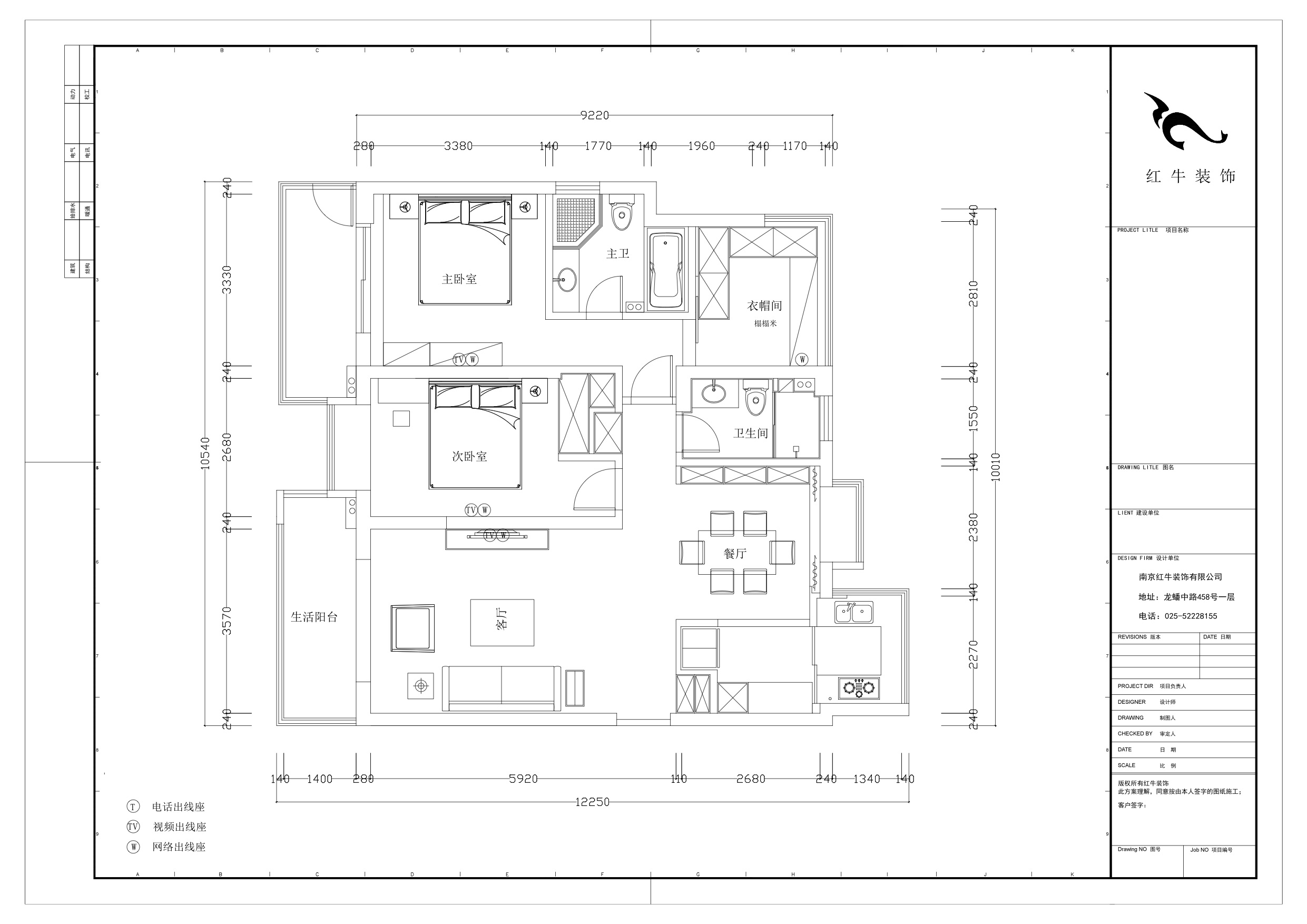
本案的戶型是三室二廳一廚二衛,有一個很特殊的地方就是把主臥和書房做了一個套房,令整個房間空間很大,使用起來很方便。

在客廳的色彩方面,可以發現藍色在整個空間中占據很大比例,能夠讓人感受到海洋的氣息,從深藍到淺藍的變化,則讓人感覺空間很有層次感。

頂上懸掛的水晶燈造型漂亮,開燈效果也很驚艷。
墻上的裝飾畫的畫框就是藍、白兩種顏色,多個不同大小、不同規格的裝飾畫組合在一起,很有設計感。
條紋圖案的沙發,顯得明快時尚,而地毯的藍白條紋則很有地中海風情。

以白色為主色調的餐廳,顯得尤為純凈雅致,最吸睛的就是藍色的內嵌的置物架,頂部的拱形設計就是地中海風格的典型特征。
桌旗使餐桌更具有質感,在這樣的餐桌用餐,心情都會愉快很多。

墻上的羅盤裝飾物很有趣,讓人想到了海洋,散發出的很濃的異域風情。
旁邊就是廚房,可以發現,餐廳與廚房沒有隔開,這樣能讓廚房提升整體的開放性和通透性。

櫥柜柜門的顏色決定了整個廚房的色調,給燥熱的廚房空間帶來一絲清涼。
此外,廚房家電采用了嵌入式的設計,被“藏”了起來。在能正常使用家電的前提下,廚房顯得更整潔、美觀了。

這就是主臥大套房的臥室部分,臥室裝修在顏色上以淺色為主。
床體為白色,四角有圓潤的羅馬圓柱裝飾,更加體現地中海風格。兩邊是對稱擺放的雙抽床頭柜,簡單大方。
淺藍色的背景墻簡非常清爽,給人一種置身海洋的感覺。墻上對稱懸掛的兩幅裝飾畫,又增添了幾分時尚氣息。

這是主臥的衛生間,不同的藍色、白色瓷磚拼貼在一起,在井然有序中又體現出生動和變化,看著感覺心情舒暢。
角落處隔出了淋浴房,透明玻璃材質顯得很美觀。墻上豎直排列懸掛的三幅裝飾畫,內容是輪船、游泳圈,使人聯想到海洋。

這就是主臥大套房中的書房,書架依墻而立,上面擺放著工藝品和書籍,看似無意卻頗有藝術感,剩下的就是看書學習時使用的一桌一椅,總體來說,書房簡單卻不乏味。

這間是次臥,梳妝臺是必不可少的家具,它的造型優雅、還散發著一種浪漫氣息。
如果少了床旗,那么房間的顏值必將大打折扣,床旗的藍色與枕頭的藍色相呼應,使床鋪看起來不再單調。
床頭的臺燈造型很有意思,有極細的燈腳,給空間帶來一絲活潑的味道。

在這間衛生間里,第一眼就注意到了圓角的矩形浴室鏡,使用這樣的鏡子可以避免被邊角弄傷,而且這樣邊角也不容易磨損。
洗手臺的造型簡潔,方便清理,顯得大氣,還不容易過時。臺下有充足的儲物空間,雜物放在其中,可以讓整個衛生間顯得有序。
家裝攻略
- 南京紅牛裝飾:始終如一,以品質說話,以服務鑄口碑!
- 再好的文案,都抵不過客戶的真實反饋!“三個最”【內附完工實景】
- 工地突擊巡檢|嚴把每一處細節,用心守護每一份安心!
- 南京紅牛裝飾再添榮譽,榮獲兩面錦旗,雙倍肯定,十分滿意!
- 南京115㎡現代簡約風裝修,每一處都將“實用”和“顏值”完美兼容!
- 裝修寶典:為何說企業文化是企業靈魂,是企業生存與發展的根本?
- 南京裝修公司紅牛裝飾工地突擊巡檢:一厘一毫堅守品質,一心一意守護新家!
- 南京裝修避坑指南:裝修材料的選擇,直接影響您入住新家的早晚?
- 南京比較靠譜的裝修公司?南京紅牛裝飾裝修寶典:新房裝修好多久可以入住?關鍵在于……
- 工地巡檢:雙節同慶,品質同行,嚴把每一道工序,用心守護夢想家!
- 避坑指南:老房改造二手舊房翻新注意這幾點,省心又省錢!
- 690億元!2025最后一批“國補”資金已下達!還可疊加企補!至高可省40000元!
- 【9月再添榮譽】業主說紅牛裝飾設計牛!監工牛!預算牛!超滿意!
- 九月秋意漸濃,南京紅牛裝飾工地巡檢步履不停,只為兌現品質承諾!
- “金九銀十”裝修黃金期,南京電視臺攜手紅牛裝飾發福利啦~
- 金秋暖心禮|一面錦旗,一句好評,一份信賴!
- 差別真的太大了!南京紅牛裝飾標準化水電工藝vs非正規/熟人施工隊的水電工藝!
- 金九銀十裝修季|南京紅牛裝飾工程總監:工地巡檢無小事,嚴苛落實工藝標準!
- 避坑指南:裝修行業門檻低,客戶陷信任危機!工期延誤、不斷加錢?!
- 家裝寶典:裝修不再走彎路,直擊高頻率痛難點附避坑指南!


