| 案例風格 | 東南亞風格 | 案例戶型 | 平層 | 案例面積 | 260㎡ |
|---|---|---|---|---|---|
| 樓盤名稱 | 頤和美地西園 | 設 計 師 | 劉曉芳 | 案例造價 | 46萬 |
設計理念
本案是一個頂躍260平米的房子,業主是法律工作者,平時的工作很嚴謹,繁瑣,回到家里就想有一個可以更加貼近大自然的空間,得到放松。所以本案定位于東南亞風格。
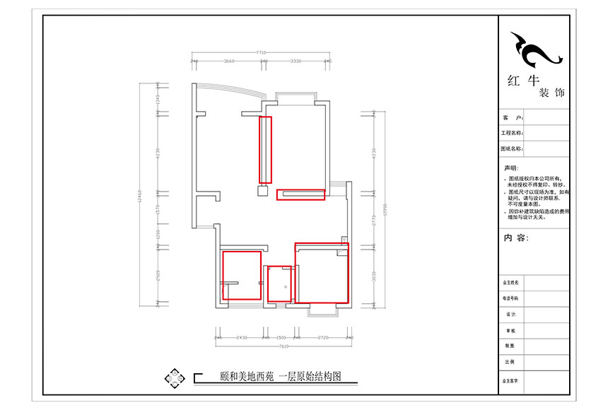
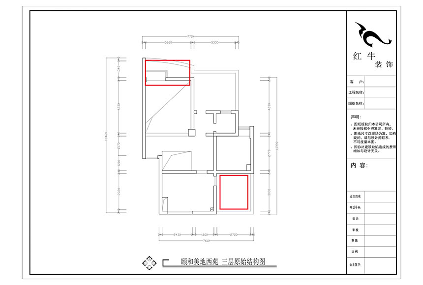
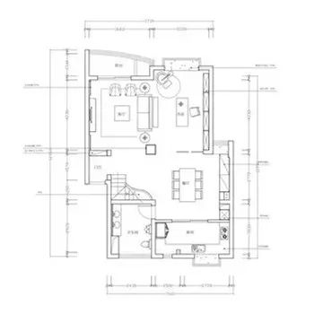
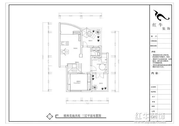
原來的結構,客餐廳的的空間是獨立開來的,沒有連貫的通透性,廚房的空間比較小,特別是這個衛生間,只有不到三個平方的空間,使用起來很不方便。
通過功能的優化設計后,把樓下的書房的空間完全打開,和客餐廳的空間融入成一個整體,無線大的擴展了樓下的空間,在視覺上面更是通透無比。廚房空間橫向的擴大,優化出一部分給餐廳,原來餐廳的空間不單單小,光線還不是很好,南北通透,無論在通風還是采光上面都得到了優化,使客廳顯得開闊大氣,具有別墅客廳的大空間;衛生間的空間現在是一個5個多平方的,滿足了業主的需求。
風格設計 唯美東方
本案是東南亞風格,在這個作品里面可以充分的展現出東南亞風情的魅力和熱帶風情。這個風格是極其崇尚自然、原汁原味。
整個空間不難發現墻面上采用了很多的實木作為裝飾,電視背景墻兩個的實木雕花隔斷,配合象征吉祥的荷花圖案的壁紙,頂面的不同材質的粱柱結合,實木的家具,使得家里透著沉穩,墻面采用了米灰色系的墻紙,作為家里大面的襯景,使得家里安靜溫馨。在南面的這個墻面采用了東亞南民族的紅色,一下把整個風格的熱情帶動了起來,用沖突的綠色窗簾,空間又提亮了很多。實木描金的雕刻,頂上的純銅的燈飾,使得家里沉穩中透著貴氣。




紅牛設計 · 大宅 | 260㎡ · 東南亞風格 · 頤和美地西園
本案為東南亞風格,該風格極其崇尚自然、原汁原味,作品中也充分展現出東南亞風情的魅力。




原來的結構,客餐廳是獨立開來的,廚房和衛生間空間都比較小,使用起來很不方便。


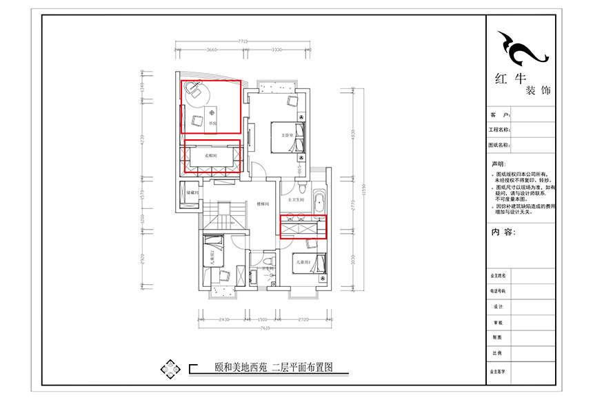
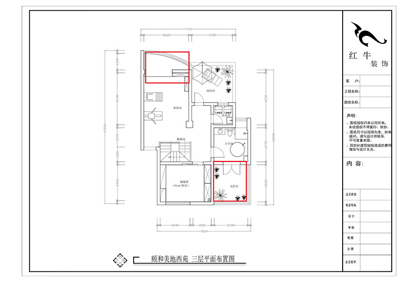
優化設計之后,把書房空間完全打開,和客餐廳的空間融入成為一個整體,廚房空間橫向擴大,優化出一部分給餐廳,使得無論在通風還是采光上面都得到了提升,體現出別墅的開闊大氣。




本案采用了很多的實木作為裝飾,比如電視背景墻的實木雕花隔斷,頂面上不同材質的粱柱結合,在搭配實木描金的雕刻,純銅的燈飾,使得家居沉穩中透著些許貴氣。


家裝攻略
- 南京紅牛裝飾:始終如一,以品質說話,以服務鑄口碑!
- 再好的文案,都抵不過客戶的真實反饋!“三個最”【內附完工實景】
- 工地突擊巡檢|嚴把每一處細節,用心守護每一份安心!
- 南京紅牛裝飾再添榮譽,榮獲兩面錦旗,雙倍肯定,十分滿意!
- 南京115㎡現代簡約風裝修,每一處都將“實用”和“顏值”完美兼容!
- 裝修寶典:為何說企業文化是企業靈魂,是企業生存與發展的根本?
- 南京裝修公司紅牛裝飾工地突擊巡檢:一厘一毫堅守品質,一心一意守護新家!
- 南京裝修避坑指南:裝修材料的選擇,直接影響您入住新家的早晚?
- 南京比較靠譜的裝修公司?南京紅牛裝飾裝修寶典:新房裝修好多久可以入住?關鍵在于……
- 工地巡檢:雙節同慶,品質同行,嚴把每一道工序,用心守護夢想家!
- 避坑指南:老房改造二手舊房翻新注意這幾點,省心又省錢!
- 690億元!2025最后一批“國補”資金已下達!還可疊加企補!至高可省40000元!
- 【9月再添榮譽】業主說紅牛裝飾設計牛!監工牛!預算牛!超滿意!
- 九月秋意漸濃,南京紅牛裝飾工地巡檢步履不停,只為兌現品質承諾!
- “金九銀十”裝修黃金期,南京電視臺攜手紅牛裝飾發福利啦~
- 金秋暖心禮|一面錦旗,一句好評,一份信賴!
- 差別真的太大了!南京紅牛裝飾標準化水電工藝vs非正規/熟人施工隊的水電工藝!
- 金九銀十裝修季|南京紅牛裝飾工程總監:工地巡檢無小事,嚴苛落實工藝標準!
- 避坑指南:裝修行業門檻低,客戶陷信任危機!工期延誤、不斷加錢?!
- 家裝寶典:裝修不再走彎路,直擊高頻率痛難點附避坑指南!


