| 案例風格 | 中古風 | 案例戶型 | 別墅 | 案例面積 | 280㎡ |
|---|---|---|---|---|---|
| 樓盤名稱 | 湯山東湖麗島 | 設 計 師 | 吳波 | 案例造價 | 35萬(全包) |
設計說明
整套方案為中式古典風格,以中國傳統古典文化為背景,營造極富中國浪漫情調的生活空間,紅木,青花瓷,紫砂壺以及紅木工藝品體現了濃郁的東方之美。客廳使用了富有中式的屏風,通過新的分隔方式,展現出中式家居的層次,設計師以簡約的造型為基礎,添加了中式元素,是整個空間感覺更加豐富,大而不空,厚而不重,有格調又不顯壓抑。
客廳是傳統與現代居室風格的碰撞,設計師以現代的裝飾手法結合古典中式的家具,來呈現亦古亦今的空間氛圍。中式風格的古色古香與現代風格的簡單素雅自然銜接,是生活的實用性和對傳統文化的追求。
臥室在色彩方面秉承了傳統古典風格的典雅和華貴,但與之不同的也加入了現代元素。在配飾方面更為簡潔,少了許多奢華的裝飾,更加流暢的表達出傳統文化中的精髓。精巧的燈具和雅致背景,使整個臥室在濃濃的古韻中透著現代氣息。
書房的設置是極有分寸而又極其豐富的傳達著家居主人的內心,從而提升了主人的身份與品位。
據業主對淡雅,自然生活的追求,庭院運用了蘇州園林的符號語言,去繁存簡。




本案以傳統古典文化為背景,通過紅木工藝品、青花瓷、紫砂壺等,營造出極富中國浪漫情調的生活空間。



典型的中式元素搭配將質樸、典雅與幽靜刻畫得惟妙惟肖。古色古香的屏風隔斷,為空間營造出獨特的朦朧之美。


圓形吊頂體現了中國傳統天圓地方的規律。


白色櫥柜經典百搭,搭配任何類型的廚房里都不會奇怪。


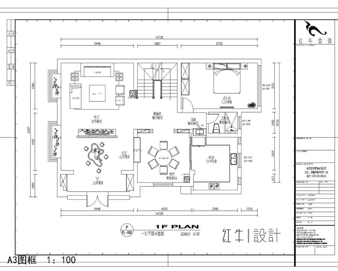
老人房設在一樓,不需要爬樓,對于老人來說更加方便。

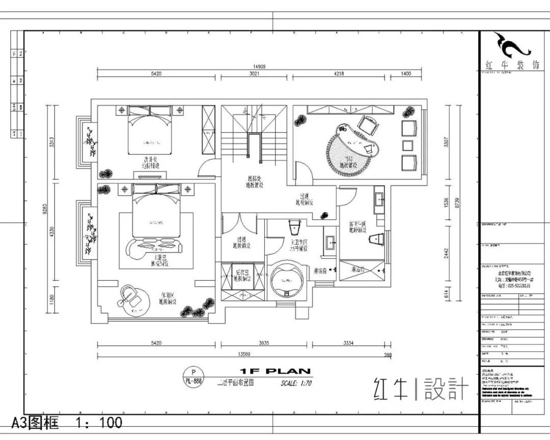
拾階而上。


臥室延續那一抹幽靜禪意,沒有過多的矯揉,是歲月的沉淀。


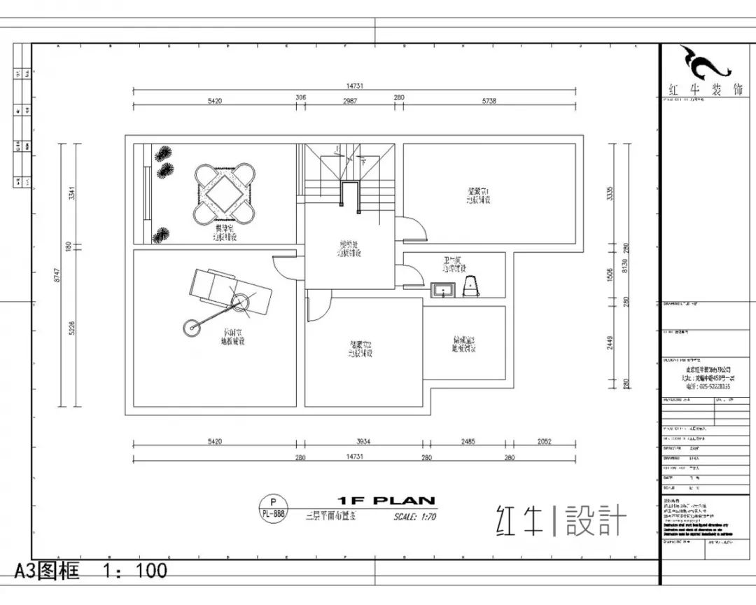
一個茶香墨韻的中式書房,在莊重典雅的氛圍中流露出深厚的文化底蘊。


三樓主要用于休閑,甚至安排了麻將桌,是娛樂的好場所。
▼一樓平面布置圖

▼二樓平面布置圖

▼三樓平面布置圖


家裝攻略
- 南京紅牛裝飾:始終如一,以品質說話,以服務鑄口碑!
- 再好的文案,都抵不過客戶的真實反饋!“三個最”【內附完工實景】
- 工地突擊巡檢|嚴把每一處細節,用心守護每一份安心!
- 南京紅牛裝飾再添榮譽,榮獲兩面錦旗,雙倍肯定,十分滿意!
- 南京115㎡現代簡約風裝修,每一處都將“實用”和“顏值”完美兼容!
- 裝修寶典:為何說企業文化是企業靈魂,是企業生存與發展的根本?
- 南京裝修公司紅牛裝飾工地突擊巡檢:一厘一毫堅守品質,一心一意守護新家!
- 南京裝修避坑指南:裝修材料的選擇,直接影響您入住新家的早晚?
- 南京比較靠譜的裝修公司?南京紅牛裝飾裝修寶典:新房裝修好多久可以入住?關鍵在于……
- 工地巡檢:雙節同慶,品質同行,嚴把每一道工序,用心守護夢想家!
- 避坑指南:老房改造二手舊房翻新注意這幾點,省心又省錢!
- 690億元!2025最后一批“國補”資金已下達!還可疊加企補!至高可省40000元!
- 【9月再添榮譽】業主說紅牛裝飾設計牛!監工牛!預算牛!超滿意!
- 九月秋意漸濃,南京紅牛裝飾工地巡檢步履不停,只為兌現品質承諾!
- “金九銀十”裝修黃金期,南京電視臺攜手紅牛裝飾發福利啦~
- 金秋暖心禮|一面錦旗,一句好評,一份信賴!
- 差別真的太大了!南京紅牛裝飾標準化水電工藝vs非正規/熟人施工隊的水電工藝!
- 金九銀十裝修季|南京紅牛裝飾工程總監:工地巡檢無小事,嚴苛落實工藝標準!
- 避坑指南:裝修行業門檻低,客戶陷信任危機!工期延誤、不斷加錢?!
- 家裝寶典:裝修不再走彎路,直擊高頻率痛難點附避坑指南!


