| 案例風格 | 現代簡約風格 | 案例戶型 | 平層 | 案例面積 | 137㎡ |
|---|---|---|---|---|---|
| 樓盤名稱 | 聚寶山莊 | 設 計 師 | 蔣琛 | 案例造價 | 22萬(全包) |
設計說明
業主崇尚簡約的生活方式,對家的要求亦是純粹的樸實感;他們崇尚自然的生命哲學,更想在這個喧囂的時代尋一處角落將之打造成寧靜又溫馨的居所;他們對家人懷抱深愛,將每一個微小行動融于生活,讓空間因此變得溫暖不已...

南京聚寶山莊137平米現代風格裝修 | 年輕人的婚房可以這樣裝修
本文介紹的是來自聚寶山莊的客戶,本案的業主是一對年輕人,裝修之后打算作為婚房使用,整個裝修老人沒有參與,全部由年輕人自己決定。
他們在網上了解到紅牛裝飾,從初次聯系,到最終簽合同,期間他們也比較過南京的其他大型裝飾公司,最終,因為滿意我們的設計,最終選擇了紅牛裝飾。
■樓盤名稱:聚寶山莊
■設計風格:現代風格
■建筑面積:137㎡
■店面地址:南京市秦淮區龍蟠中路458-3號【南京紅牛裝飾工程有限公司】
■服務熱線:025-52228153
這對年輕人中的男孩很注重設計,喜歡黑白系列,喜歡比較酷的東西。設計師與他們溝通之后,找出許多效果圖給他們看,最終定下來現代風格,他們非常滿意。

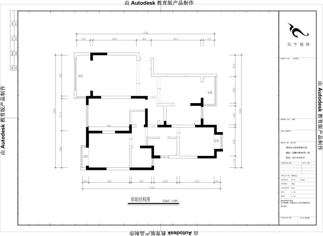
△原始戶型圖
本案中,設計師對戶型做了很大的改變。原戶型一個北陽臺,但客戶對此需求不大,而是要求多一個書房,但由于本戶型中只有三個正常的房間,所有就有了把北陽臺改成廚房,原廚房改成書房的想法,并且在燃氣等實施過程中可以實現。

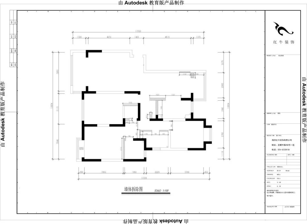
△拆除圖

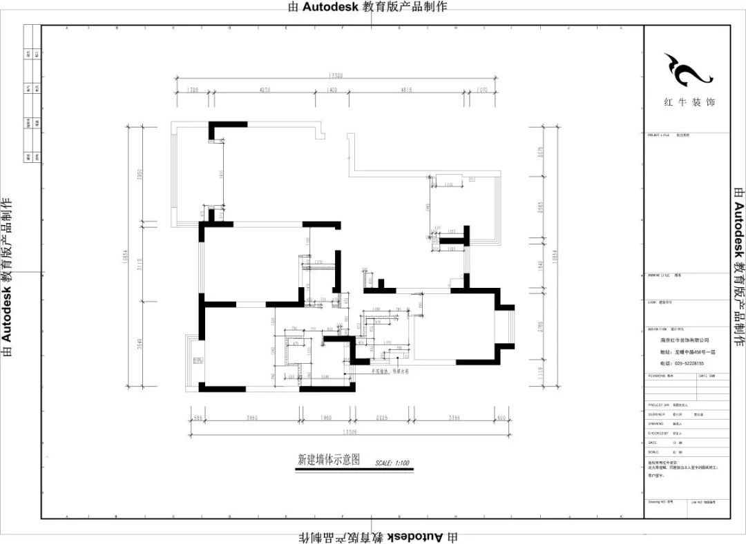
△砌墻圖
對比拆除、砌墻的圖,可以發現,整個空間兩個衛生間的布局全部進行了重新規劃,實現最大空間的利用,令整個空間更舒適。

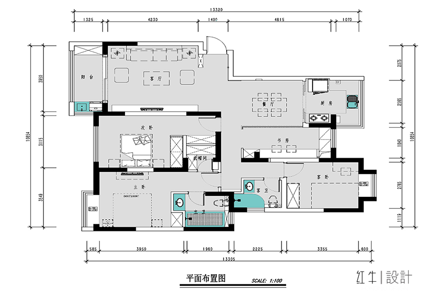
△平面布置圖
下面就來看一下當時制作的效果圖時什么樣的。

△客廳效果圖
一進入大門,右手邊就是客廳,玄關柜起到屋里屋外的緩沖作用,上面擺了兩盆綠植,開門見綠,心情也會變得很好。
客廳面積不小,整體看起來寬敞通透,大面積的灰色結合光澤靈動的地面瓷磚,使空間顯現出明凈和超強的質感。
此外,米色地毯的選擇在一定程度上也緩和了空間冰冷的感覺,黃色懶人沙發也起到了不錯的點綴效果。
電視背景墻安裝有燈帶,起到勾勒輪廓的作用,展現了光影之美。

△客廳
這是驗收時的客廳,無論是上方純凈的黑色,還是下方大理石材質,都展現出極佳的空間質感。

△餐廳效果圖
上文也說到了,設計師將原廚房改成了書房,書房用玻璃隔斷,增加了整個空間的視覺感。

△餐廳
驗收時的圖片看起來,玻璃隔斷確實很有通透感。書房黑白灰的搭配,簡單卻經典,兩排隔板,可以放一些書籍,裝飾品之類。
客廳部分,古樸的木質桌面搭配鐵質桌腿,很是時尚。椅子也是典雅又休閑的感覺,整體上是年輕化的風格。
餐廳上方的吊燈,支架上分出三個“枝丫”,頂端安裝了透明燈泡,很有裝飾效果。

△廚房
廚房是U型設計,做飯時操作便利。白色的櫥柜搭配灰調的墻面瓷磚,低調大方又有清潔感。
油煙機對面的位置放置了冰箱,餐廳與廚房通過玻璃推拉門隔開。

△走道
走道墻面以體現自然感的灰色為主,簡約大方。

△主臥
背景墻擁有水泥墻面的原始粗糲,上面的線條紋路隨意中又帶有設計感,很酷的風格。
床頭安裝了兩個吊燈,這樣能節約的床頭柜的柜面位置,看上去更加時尚。


合理地利用空間做了一個嵌入式柜子,增加了收納空間,白色柜面在青灰色墻壁中,清爽美觀。

△次臥

△客臥
到頂的柜子,與整個空間渾然一體,就連把手也利落美觀。底部還包含了三個抽屜,收納能便利許多。
墻面就像是蓋滿了多種圖章,設計得很有特色。

△衛生間
衛生間里有安裝淋浴間,能夠達到干濕分離的效果。
浴室柜選用了臺上盆,看上去簡潔大方。鏡子旁邊的收納柜能容納不少常用物品。

△衛生間
地上的小方磚看上去復古又時尚。墻磚由兩種顏色構成,上輕下重。
黑色毛巾架與常用的銀色不銹鋼比起來,顏值有了很大的提升。
-----------------------------------------------------------------
這樣的成品家是怎樣產生的呢?下面來看看我們的施工過程。
首先,就是根據設計進行拆墻。




拆除完畢,由瓦工進行砌墻。



正式開工前的預開工,地面(除衛生間、廚房)統一刷綠色地固,地面有損壞的需及時修補后補刷。
接下來是中央空調的施工。



與空調安裝同步開始的是水電施工。

先是由電工進行開槽。


墻面冷水管≥10mm,熱水管≥15mm。嵌入墻體、暗敷的管道必須進行隱蔽工程驗收,開槽寬度應為管徑的1.5倍,開槽邊緣應打毛、浸潤。
之后就是電工進行埋線盒、穿線等內容。

水電施工之后是瓦工貼瓷磚。


△墻磚

△地磚
之后是木工制作吊頂部分。



石膏板吊頂為防止面層的開裂和變性,輕鋼龍骨為各種吊頂的首選材料。

然后就輪到漆工上場了,做基層處理之后,再批面層膩子。



披掛膩子一定要做到平、實、光。陰角必須彈線,陽角必須用護角條。


面層膩子批好之后等干。



現場衣柜、櫥柜成品或半成品必須用公司統一保護膜實行保護。
最后,就是木地板、木門、墻紙等等的安裝。


經過幾個月的努力,美麗的成品家就這樣完成了。
在紅牛的工地中,門上貼著施工進度表和簽到表,并且保證規范填寫。

過程中,一直會有監理巡視工地,檢查裝修進度與質量,并拍攝圖片上傳紅牛的云管理系統,方便業主隨時了解工地情況。
紅牛良好的服務,也得到了業主的認可。對此,業主特別寫下了感謝信。


△業主對紅牛的評價
“陽光模式,誠信家裝”,選擇紅牛裝飾就是選擇滿意與放心,歡迎大家來紅牛門店參觀考察。

家裝攻略
- 南京紅牛裝飾:始終如一,以品質說話,以服務鑄口碑!
- 再好的文案,都抵不過客戶的真實反饋!“三個最”【內附完工實景】
- 工地突擊巡檢|嚴把每一處細節,用心守護每一份安心!
- 南京紅牛裝飾再添榮譽,榮獲兩面錦旗,雙倍肯定,十分滿意!
- 南京115㎡現代簡約風裝修,每一處都將“實用”和“顏值”完美兼容!
- 裝修寶典:為何說企業文化是企業靈魂,是企業生存與發展的根本?
- 南京裝修公司紅牛裝飾工地突擊巡檢:一厘一毫堅守品質,一心一意守護新家!
- 南京裝修避坑指南:裝修材料的選擇,直接影響您入住新家的早晚?
- 南京比較靠譜的裝修公司?南京紅牛裝飾裝修寶典:新房裝修好多久可以入住?關鍵在于……
- 工地巡檢:雙節同慶,品質同行,嚴把每一道工序,用心守護夢想家!
- 避坑指南:老房改造二手舊房翻新注意這幾點,省心又省錢!
- 690億元!2025最后一批“國補”資金已下達!還可疊加企補!至高可省40000元!
- 【9月再添榮譽】業主說紅牛裝飾設計牛!監工牛!預算牛!超滿意!
- 九月秋意漸濃,南京紅牛裝飾工地巡檢步履不停,只為兌現品質承諾!
- “金九銀十”裝修黃金期,南京電視臺攜手紅牛裝飾發福利啦~
- 金秋暖心禮|一面錦旗,一句好評,一份信賴!
- 差別真的太大了!南京紅牛裝飾標準化水電工藝vs非正規/熟人施工隊的水電工藝!
- 金九銀十裝修季|南京紅牛裝飾工程總監:工地巡檢無小事,嚴苛落實工藝標準!
- 避坑指南:裝修行業門檻低,客戶陷信任危機!工期延誤、不斷加錢?!
- 家裝寶典:裝修不再走彎路,直擊高頻率痛難點附避坑指南!


