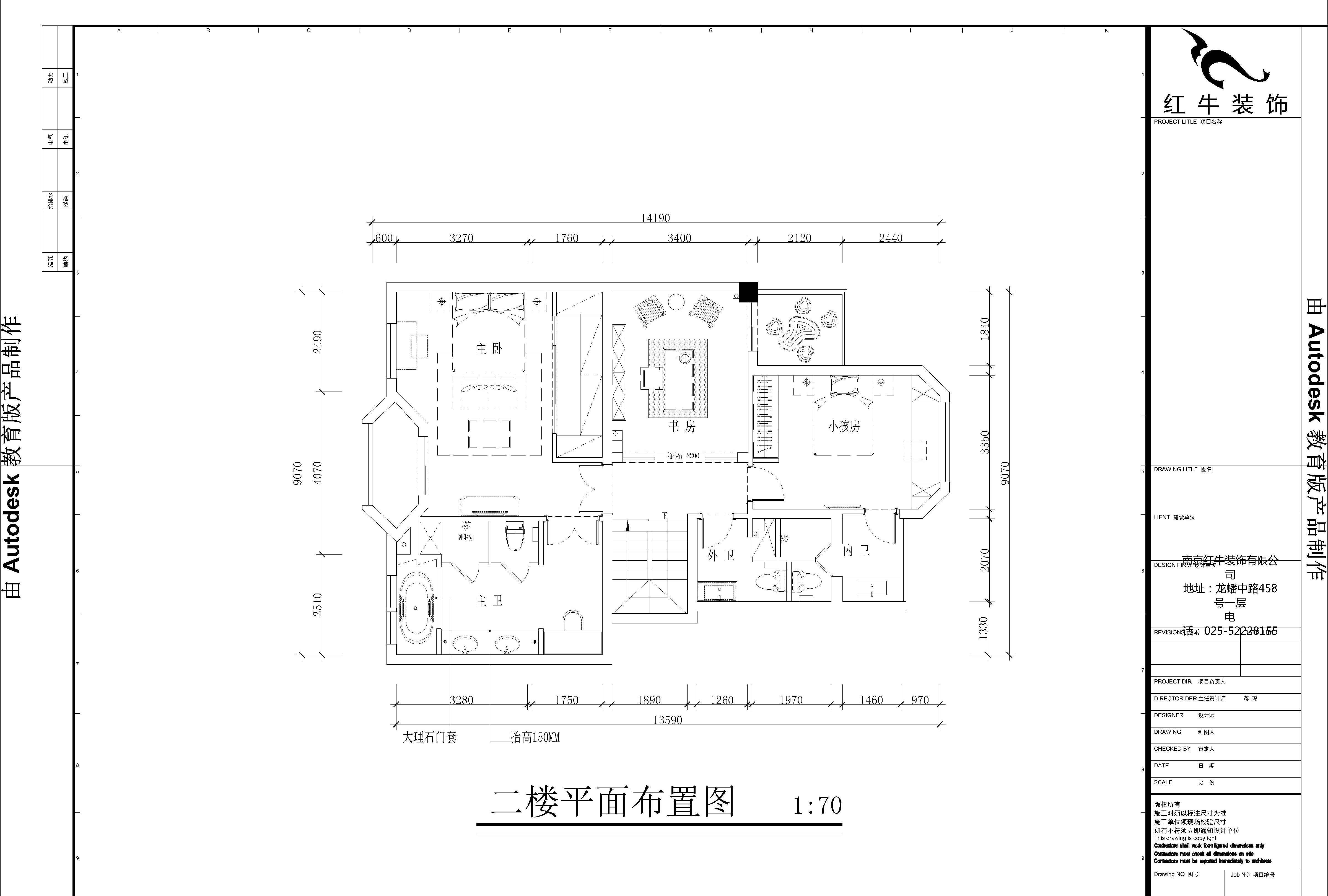
| 案例風格 | 歐式風格 | 案例戶型 | 別墅 | 案例面積 | 320㎡ |
|---|---|---|---|---|---|
| 樓盤名稱 | 萬山庭院 | 設 計 師 | 蔣琛 | 案例造價 | 28萬(半包) |
設計理念
簡約歐式風格沿襲古典歐式主精華,融入現代生活元素,歐式風格有的不只是豪華大氣,更多的是愜意和浪漫。通過完美的點線,精益求精的細節處理,帶給家人不盡的舒適觸感.本案中,設計師大膽使用了深色系的軟裝搭配,點綴以棕色的硬裝家具的呼應,再融合華麗的線條以及地面拼花,正迎合了歐式風格強調以華麗的裝飾,濃烈的色彩,精美的造型打到雍容華貴的效果。餐廳的金箔頂面和電視背景墻的暖色大花墻紙,更從新古典的尊貴感上為空間增色不少。






家裝攻略
- 南京紅牛裝飾:始終如一,以品質說話,以服務鑄口碑!
- 再好的文案,都抵不過客戶的真實反饋!“三個最”【內附完工實景】
- 工地突擊巡檢|嚴把每一處細節,用心守護每一份安心!
- 南京紅牛裝飾再添榮譽,榮獲兩面錦旗,雙倍肯定,十分滿意!
- 南京115㎡現代簡約風裝修,每一處都將“實用”和“顏值”完美兼容!
- 裝修寶典:為何說企業文化是企業靈魂,是企業生存與發展的根本?
- 南京裝修公司紅牛裝飾工地突擊巡檢:一厘一毫堅守品質,一心一意守護新家!
- 南京裝修避坑指南:裝修材料的選擇,直接影響您入住新家的早晚?
- 南京比較靠譜的裝修公司?南京紅牛裝飾裝修寶典:新房裝修好多久可以入住?關鍵在于……
- 工地巡檢:雙節同慶,品質同行,嚴把每一道工序,用心守護夢想家!
- 避坑指南:老房改造二手舊房翻新注意這幾點,省心又省錢!
- 690億元!2025最后一批“國補”資金已下達!還可疊加企補!至高可省40000元!
- 【9月再添榮譽】業主說紅牛裝飾設計牛!監工牛!預算牛!超滿意!
- 九月秋意漸濃,南京紅牛裝飾工地巡檢步履不停,只為兌現品質承諾!
- “金九銀十”裝修黃金期,南京電視臺攜手紅牛裝飾發福利啦~
- 金秋暖心禮|一面錦旗,一句好評,一份信賴!
- 差別真的太大了!南京紅牛裝飾標準化水電工藝vs非正規/熟人施工隊的水電工藝!
- 金九銀十裝修季|南京紅牛裝飾工程總監:工地巡檢無小事,嚴苛落實工藝標準!
- 避坑指南:裝修行業門檻低,客戶陷信任危機!工期延誤、不斷加錢?!
- 家裝寶典:裝修不再走彎路,直擊高頻率痛難點附避坑指南!


