| 案例風格 | 法式風格 | 案例戶型 | 平層 | 案例面積 | 135㎡ |
|---|---|---|---|---|---|
| 樓盤名稱 | 御林山莊 | 設 計 師 | 紅牛裝飾設計團隊 | 案例造價 | |
“中國就如同一顆氣質典雅而高貴的鉆石,閃耀著神圣而璀璨的光芒。”約斯特·馮達爾曾經在書里這么寫道。當今社會,設計風格絡繹不絕,而法式中國風在18世紀的法國風靡一時,它集優雅、文化、藝術及歷史于一身,將東方神秘韻味與法式浪漫完美的呈現。
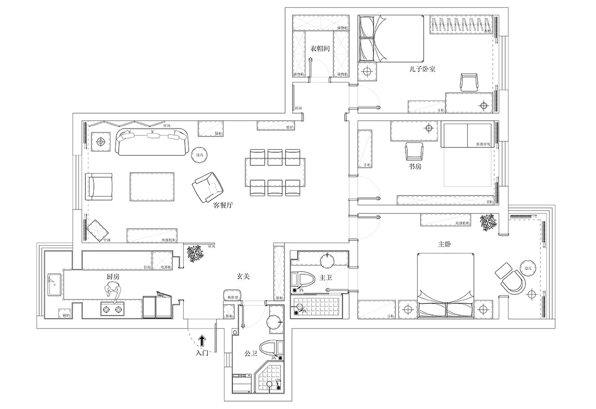
這套案例就是法式中國風用現代的手法呈現。房屋建筑面積135㎡,套內面積118㎡,戶型是三房兩廳一廚兩衛。

客餐廳里的法式主沙發,配上中式的山水屏風,既風雅,又現代。屏風表面施以山水風景的精細雕飾,彰顯東方浪漫,沙發一側放著明式的官帽椅與邊幾,另一側放著舒適的休閑單人沙發,兩者碰撞,和諧典雅。


沙發旁邊的漆柜是東方文化與歐洲設計的完美交融,精美的彩繪漆工和華麗的裝飾,展示著中國傳統的工藝與東方文化底蘊,放置在客餐廳,步入此空間,一眼便能看到,由此彰顯著主人的身份和地位。

硬裝上運用亞光白灰色地磚、白色乳膠漆、法式的PU線條、角花為基底,客餐廳里的壁爐、大理石門套,讓簡潔明快的空間充滿了法式浪漫與異域情調。
玄關與客餐廳用長虹玻璃做隔斷,既延長了電視背景墻有起到了劃分空間的作用,維尼奧拉的門延續了古典的韻味,是空間簡大氣。


主臥與陽臺相連,延用法式風格,用現代的手法勾勒出溫馨的休息氛圍,次臥是小孩臥室,床的擺放時活動空間更大,書房是業主辦公的業余空間,整墻的書柜會讓整個空間的收納得到妥善處理,休閑沙發放在窗戶邊上,半躺在沙發上,陽光透過窗戶灑在身上,溫暖舒適,可以獨享這閑暇時光!



家裝攻略
- 南京紅牛裝飾:始終如一,以品質說話,以服務鑄口碑!
- 再好的文案,都抵不過客戶的真實反饋!“三個最”【內附完工實景】
- 工地突擊巡檢|嚴把每一處細節,用心守護每一份安心!
- 南京紅牛裝飾再添榮譽,榮獲兩面錦旗,雙倍肯定,十分滿意!
- 南京115㎡現代簡約風裝修,每一處都將“實用”和“顏值”完美兼容!
- 裝修寶典:為何說企業文化是企業靈魂,是企業生存與發展的根本?
- 南京裝修公司紅牛裝飾工地突擊巡檢:一厘一毫堅守品質,一心一意守護新家!
- 南京裝修避坑指南:裝修材料的選擇,直接影響您入住新家的早晚?
- 南京比較靠譜的裝修公司?南京紅牛裝飾裝修寶典:新房裝修好多久可以入住?關鍵在于……
- 工地巡檢:雙節同慶,品質同行,嚴把每一道工序,用心守護夢想家!
- 避坑指南:老房改造二手舊房翻新注意這幾點,省心又省錢!
- 690億元!2025最后一批“國補”資金已下達!還可疊加企補!至高可省40000元!
- 【9月再添榮譽】業主說紅牛裝飾設計牛!監工牛!預算牛!超滿意!
- 九月秋意漸濃,南京紅牛裝飾工地巡檢步履不停,只為兌現品質承諾!
- “金九銀十”裝修黃金期,南京電視臺攜手紅牛裝飾發福利啦~
- 金秋暖心禮|一面錦旗,一句好評,一份信賴!
- 差別真的太大了!南京紅牛裝飾標準化水電工藝vs非正規/熟人施工隊的水電工藝!
- 金九銀十裝修季|南京紅牛裝飾工程總監:工地巡檢無小事,嚴苛落實工藝標準!
- 避坑指南:裝修行業門檻低,客戶陷信任危機!工期延誤、不斷加錢?!
- 家裝寶典:裝修不再走彎路,直擊高頻率痛難點附避坑指南!


